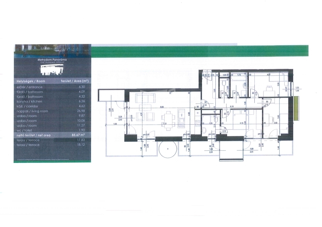
| 86 m2Alapterület | 4 Szoba |
| 186 500 000 Ft Ár | |
| 393910Azonosító | |
| További adatok | |
Panoráma Kilátás
Újszerű Állapot
Tégla Szerkezet
35 m2 Erkély/terasz
Házközponti egyedi mérővel Fűtés
Összkomfort Komfort
Garázs/beálló vásárolható Parkolás
Emelet 13
Van Lift
Jó Tömegközlekedés
Amerikai konyhás
Nincs Kertkapcsolat
2020 Építés éve
Közös költség 59 000 Ft
Délnyugati Tájolás