Eladó Sorház Budapest XII. kerület - Méra utca

122 m2Alapterület 4 Szoba
159 600 000 Ft Ár
393665Azonosító
További adatok

35 m2 Telek

Panoráma Kilátás

Közepes Állapot

Panel Szerkezet

5 m2 Erkély/terasz

Gáz (cirkó) Fűtés

Összkomfort Komfort

Saját beálló Parkolás

Tömegközlekedés

Nem Amerikai konyhás

Van Kertkapcsolat

1980 Építés éve

Közös költség 15 000 Ft

Nyugati Tájolás

Hitelkalkuláció – a részletekért kattintson valamelyik bank logójára!

ELADÓ KÖZEPES ÁLLAPOTÚ SORHÁZ XII. KERÜLETBEN MÁRTONHEGYEN – PANORÁMA, KERT ÉS SOK TÁROLÁSI LEHETŐSÉG!

120 nm, 4 szoba, terasz + kert, 159.6 MFt.

Budán, a Mártonhegyen, csendes, zöld környezetben eladó egy 120 nm-es, háromszintes, kertkapcsolatos panel építésű sorház. A ház panorámás, világos, és a természet közelsége garantált, miközben a belváros 15–20 perc alatt elérhető autóval, vagy a 110-es és 112-es buszokkal.

A sorház része egy sorompóval védett lakóparknak, a kert, előkert és erkély különösen családbaráttá teszi az ingatlant. Az alsószint félszuterén része sokféle felhasználásra alkalmas: játszótér, wellness, edzőterem, vagy akár vendégszoba is kialakítható.

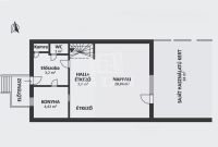
Elrendezés:
• Földszint: nappali, étkező, konyha, WC, előszoba, kamra + kertkapcsolat
• Felsőszint: két hálószoba, fürdő, panorámás erkély, beépített gardróbok
• Alsószint: mosókonyha, előtér, szoba („játszó- vagy wellness-rész”)
Főbb előnyök:
• Saját kert és előkert
• Panorámás erkély
• Világos, nagy ablakok
• Gardróbszekrények, sok tárolási lehetőség
• Lakható állapot, modernizálható
Közlekedés és infrastruktúra:
• Buszmegállók gyalogosan elérhetők
• MOM Park, Hegyvidéki Bevásárlóközpont közel
• Óvodák, iskolák, játszóterek a környéken
• Természetközeli helyszín: Normafa, Kis-Sváb-hegy

Parkolás: saját autóbeálló + közterületen kényelmes, nem fizetős parkolás.

Irányár: 159,6 millió Ft
Országh Eszter

Országh Eszter

Hívjon bizalommal

+36-30-648-Mutasd!

További hirdetéseim

Ingatlaniroda
GDN Ingatlanhálózat - HázPont
+36 30 785 2223

Küldjön üzenetet

Visszahívást kérek

Hasonló ingatlanok