Eladó Lakás (téglaépítésű) Budapest XIII. kerület - Országbíró utca

69 m2Alapterület 2 + 1 Szoba
100 050 000 Ft Ár
392819Azonosító
További adatok

866 m2 Telek

Utcai Kilátás

Új Állapot

Tégla Szerkezet

2 m2 Erkély/terasz

Hőszivattyú Fűtés

Összkomfort Komfort

Utcán, közterületen Parkolás

Emelet 2

Legfelső emelet

Nincs Lift

Tömegközlekedés

Amerikai konyhás

Nincs Kertkapcsolat

Tetőtéri ingatlan

2027 Építés éve

Délkeleti Tájolás

Hitelkalkuláció – a részletekért kattintson valamelyik bank logójára!

ÚJ ÉPÍTÉSŰ INGATLANOK 2027 KÖLTÖZÉSSEL!

Angyalföld:

Angyalföld Budapest XIII. kerületének legnagyobb városrésze, amely az egykori ipari zónából mára modern lakó- és irodanegyeddé alakult át. Hagyományos ipari zónák helyén ma már irodaházak, kereskedelmi egységek és a Duna-parton luxuslakások találhatók.

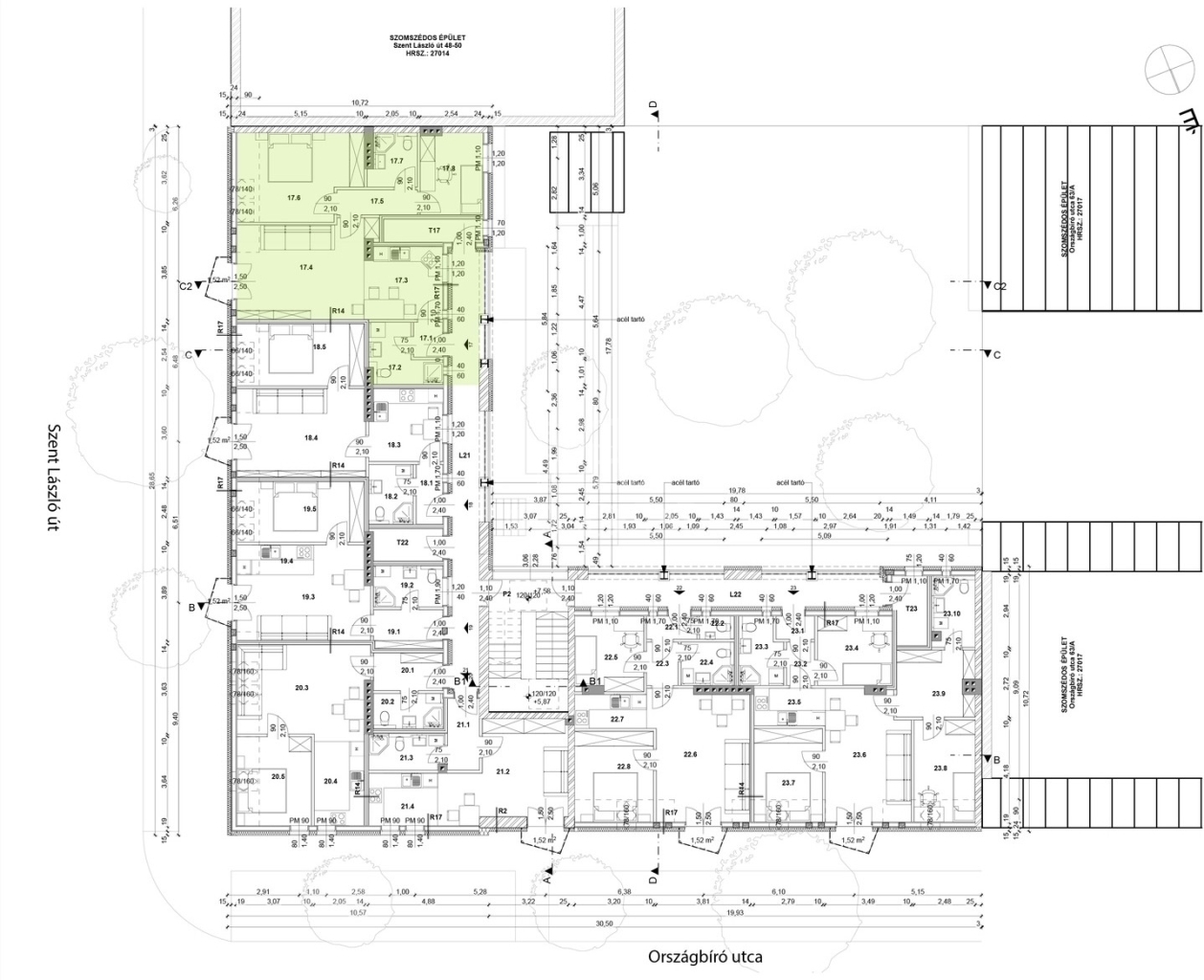
Az épület tettérbeépítése során törekedtünk olyan lakások kialakítására, ami a mai lakásigényeknek felel
meg, mint amerikai konyhás nappali és külön hálószoba. Változatos lakásokat alakítottunk ki úgy
méretükben, mint elrendezésükben.

17 lakás.
Előszoba: 2.35 nm.
Fürdőszoba: 5.49 nm.
Konyha+ étkező: 10,01 nm.
Nappali: 21.48 nm.
Közlekedő: 4.39 nm.
Hálószoba: 17.08 nm.
Fürdőszoba: 4.05 nm.
Halószoba: 8.53 nm.
Erkély: 1.52 nm.

Fizetés: készültségi fokozathoz kötött fizetési ütemezés.

A további kérdésekkel és a megtekintéssel kapcsolatban, kérem keressen a megadott mobil számon.
Országh Eszter

Országh Eszter

Hívjon bizalommal

+36-30-648-Mutasd!

További hirdetéseim

Ingatlaniroda
GDN Ingatlanhálózat - HázPont
+36 30 785 2223

Küldjön üzenetet

Visszahívást kérek

Hasonló ingatlanok