Eladó Lakás (téglaépítésű) Budapest XIII. kerület - Országbíró utca

70 m2Alapterület 1 + 3 Szoba
101 500 000 Ft Ár
392828Azonosító
További adatok

866 m2 Telek

Utcai Kilátás

Új Állapot

Tégla Szerkezet

2 m2 Erkély/terasz

Hőszivattyú Fűtés

Összkomfort Komfort

Utcán, közterületen Parkolás

Emelet 2

Legfelső emelet

Nincs Lift

Tömegközlekedés

Amerikai konyhás

Nincs Kertkapcsolat

Tetőtéri ingatlan

2027 Építés éve

Északkeleti Tájolás

Hitelkalkuláció – a részletekért kattintson valamelyik bank logójára!

ÚJ ÉPÍTÉSŰ INGATLANOK 2027 KÖLTÖZÉSSEL!

Angyalföld:

Angyalföld Budapest XIII. kerületének legnagyobb városrésze, amely az egykori ipari zónából mára modern lakó- és irodanegyeddé alakult át. Hagyományos ipari zónák helyén ma már irodaházak, kereskedelmi egységek és a Duna-parton luxuslakások találhatók.

Az épület tettérbeépítése során törekedtünk olyan lakások kialakítására, ami a mai lakásigényeknek felel
meg, mint amerikai konyhás nappali és külön hálószoba. Változatos lakásokat alakítottunk ki úgy
méretükben, mint elrendezésükben.

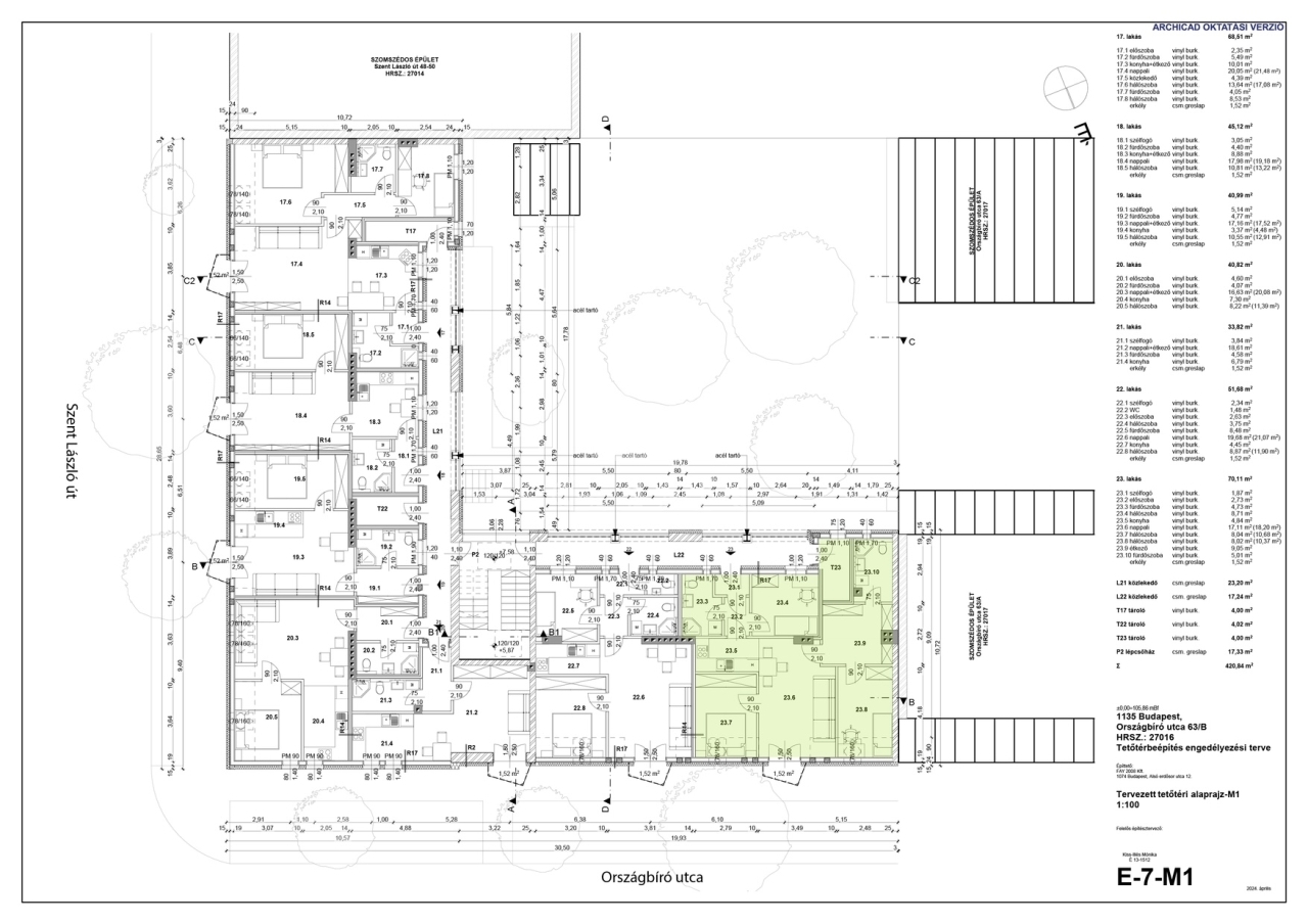
23 lakás.
Előszoba: 2.73 nm.
Előtér: 1.87 nm.
Fürdőszoba: 4.73 nm.
Konyha: 4.84 nm.
Nappali: 18.20 nm.
Közlekedő: 4.39 nm.
Hálószoba: 8.71 nm.
Fürdőszoba: 4.05 nm.
Halószoba: 8.04 nm.
Hálószoba: 8.02 nm.
Fürdőszoba: 5.01 nm.
Erkély: 1.52 nm.

Fizetés: készültségi fokozathoz kötött fizetési ütemezés.

A további kérdésekkel és a megtekintéssel kapcsolatban, kérem keressen a megadott mobil számon.
Országh Eszter

Országh Eszter

Hívjon bizalommal

+36-30-648-Mutasd!

További hirdetéseim

Ingatlaniroda
GDN Ingatlanhálózat - HázPont
+36 30 785 2223

Küldjön üzenetet

Visszahívást kérek

Hasonló ingatlanok