Eladó Lakás (téglaépítésű) Budapest IX. kerület - Ferenc körút

62 m2Alapterület 1 Szoba
89 900 000 Ft Ár
395275Azonosító
További adatok

Utcai Kilátás

Felújított Állapot

Tégla Szerkezet

Házközponti egyedi mérővel Fűtés

Összkomfort Komfort

Utcán, közterületen Parkolás

Emelet 1

Van Lift

Kiváló Tömegközlekedés

Nem Amerikai konyhás

Nincs Kertkapcsolat

1945 Építés éve

Északi Tájolás

Hitelkalkuláció – a részletekért kattintson valamelyik bank logójára!

Ferenc körúton

Budapest szívében, a IX. kerület egyik legkedveltebb részén kínáljuk megvételre ezt a különleges hangulatú, világos otthont.

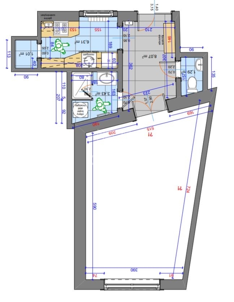
Alapterület: 62 m², amely 47 m² lakótérből és egy 15 m²-es, kényelmes állógalériából áll.

Az ingatlan tégla építésű, felújított állapotú, így új tulajdonosa számára azonnal költözhető, további ráfordítást nem igényel.

A közel 4 méteres belmagasság egyedi, loft jellegű térérzetet biztosít, amely tovább növeli a lakás tágasságát és világosságát. Az átgondolt elrendezésnek köszönhetően külön nappali, galéria, konyha, valamint különálló fürdőszoba és WC áll rendelkezésre.

A lakás teljesen bútorozott, így ideális választás lehet akár saját otthonnak, akár befektetési céllal történő hasznosításra.

Az ingatlan egy liftes társasház első emeletén található. Fűtéséről házközponti rendszer gondoskodik egyedi méréssel. Az északi tájolás csendes, nyugodt lakókörnyezetet biztosít. Parkolás az utcán, fizetős övezetben lehetséges.

Elhelyezkedése kiváló: a Ferenc körút közlekedési kapcsolatai kiemelkedőek, a környéken számos étterem, kávézó és minden szükséges szolgáltatás könnyedén elérhető.

Ez a lakás remek választás mindazok számára, akik egy stílusos, azonnal költözhető otthont keresnek, vagy értékálló befektetésben gondolkodnak.

Amennyiben felkeltette érdeklődését, keressen bizalommal.
Országh Eszter

Országh Eszter

Hívjon bizalommal

+36-30-648-Mutasd!

További hirdetéseim

Ingatlaniroda
GDN Ingatlanhálózat - HázPont
+36 30 785 2223

Küldjön üzenetet

Visszahívást kérek

Hasonló ingatlanok