Eladó Családi ház Csákberény - Petőfi Sándor utca

100 m2Alapterület 3 Szoba
71 500 000 Ft Ár
394341Azonosító
További adatok

2333 m2 Telek

Udvari Kilátás

Felújított Állapot

Vegyes falazat Szerkezet

10 m2 Erkély/terasz

Gáz (cirkó) Fűtés

Összkomfort Komfort

Saját beálló Parkolás

Tömegközlekedés

Amerikai konyhás

Van Kertkapcsolat

1965 Építés éve

Hitelkalkuláció – a részletekért kattintson valamelyik bank logójára!

Vh-00 Csákberényben, a Petőfi Sándor utcában eladó egy 100 m² hasznos alapterületű, felújított, nádtetős ,,parasztház” 2333 m²-es telken.

Az ingatlan utcafronti, kb. 70 m²-es része az 1930-as években épült vályogból és dolomitból, míg a hátsó épületrész 2000-ben készült B30-as falazattal. A régebbi épületrész a bővítés során teljes körű felújításon esett át, amely magában foglalta a víz- és villanyvezetékek, a nyílászárók és a burkolatok cseréjét, a fűtés korszerűsítését, valamint a teljes tetőszerkezet felújítását és szigetelését. Az ingatlan statikailag jó állapotú. Energetikai besorolása: E

A ház autentikus hangulatát a minden helyiségben megjelenő, fa szerkezetű parasztfödém teszi különlegessé.
A fűtést új gázkazán biztosítja radiátoros hőleadással, kiegészítve egy hangulatos kandallóval. Az előtérben hűtő-fűtő klíma is rendelkezésre áll. A villamos hálózat 32 A kapactású. A helyiségek belmagassága 2,5–2,7 méter.

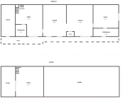
Helyiségek:
• konyha
• nappali
• előtér
• 2 szoba
• 2 fürdőszoba
• konyha-nappali

A házhoz tartozik továbbá egy tároló és egy hangulatos, boltíves pince.

A 2333 m²-es telek gondozott, számos gyümölcsfával beültetett (birs, szilva, körte, cseresznye stb.), valamint egy kerti tároló is megtalálható rajta. Az utcafront szélessége 27 méter.

Eladási irányár: 71,5 millió Ft
Az ingatlan per- és tehermentes.

Ha felkeltette érdeklődését, hívja irodánkat bizalommal, éljen ingyenes, személyre szabott hitelügyintézés szolgáltatásunkkal. Segítünk továbbá adásvételhez szükséges ügyvédi közreműködésben, energetikai tanúsítvány, valamint értékbecslés elkészítésében.
Országh Eszter

Országh Eszter

Hívjon bizalommal

+36-30-648-Mutasd!

További hirdetéseim

Ingatlaniroda
GDN Ingatlanhálózat - HázPont
+36 30 785 2223

Küldjön üzenetet

Visszahívást kérek

Hasonló ingatlanok