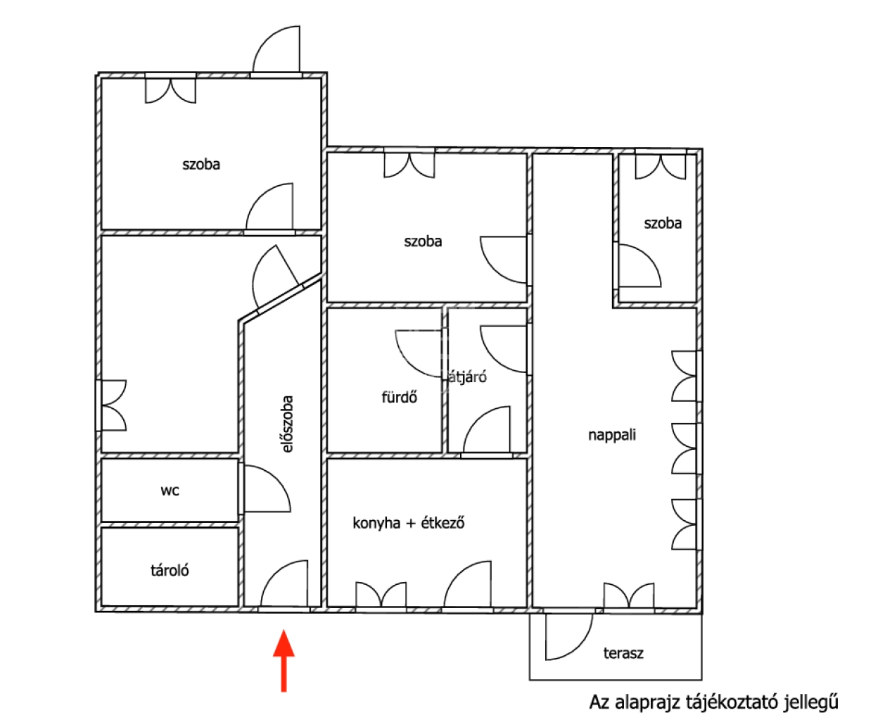
| 92 m2Alapterület | 4 Szoba |
| 84 900 000 Ft Ár | |
| 393801Azonosító | |
| További adatok | |
669 m2 Telek
Udvari Kilátás
Felújított Állapot
Tégla Szerkezet
10 m2 Erkély/terasz
Hőszivattyú Fűtés
Dupla komfort Komfort
Saját garázs Parkolás
Jó Tömegközlekedés
Nem Amerikai konyhás
Van Kertkapcsolat
1985 Építés éve