Eladó Ikerház Gencsapáti - Alkotmány utca

93 m2Alapterület 4 + 1 Szoba
97 990 000 Ft Ár
395031Azonosító
További adatok

311 m2 Telek

Kertre néző Kilátás

Új Állapot

Tégla Szerkezet

20 m2 Erkély/terasz

Hőszivattyú Fűtés

Összkomfort Komfort

Saját beálló Parkolás

Tömegközlekedés

Amerikai konyhás

Van Kertkapcsolat

2026 Építés éve

Hitelkalkuláció – a részletekért kattintson valamelyik bank logójára!

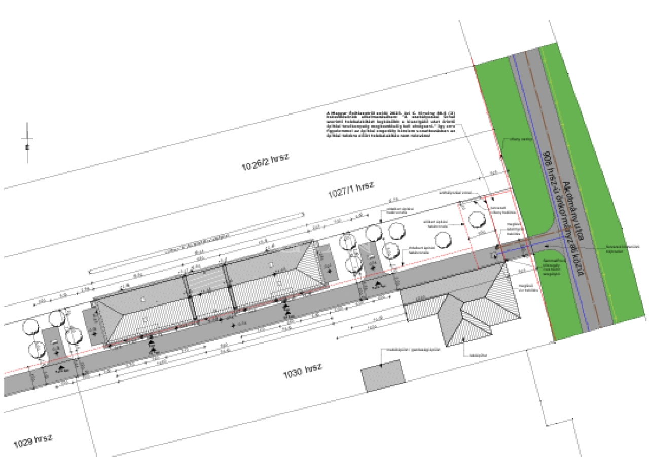
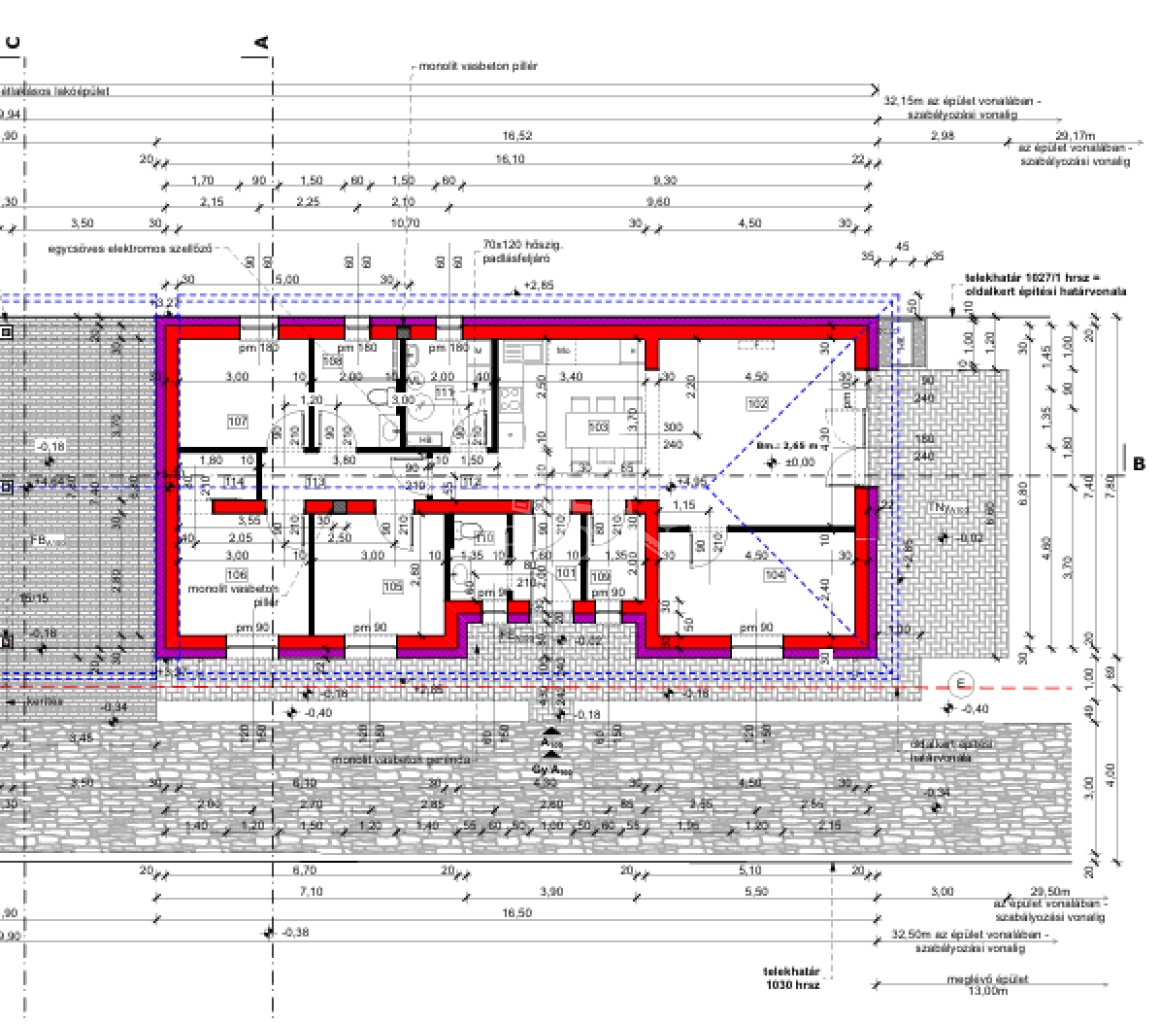
Dinamikusan fejlődő településen új építésű családi házak eladók. Gencsapátiban rendkívül jó az infrastruktúra. A település tömegközlekedése, busszal és vonattal is megoldott. A beruházás jó minőségű aszfaltos útról megközelíthető, zöldövezeti környezetben az Alkotmány utcában kerül megvalósításra. A tégla falazatú ingatlan 15 cm vastag EPS rendszerű szigetelést kap. Lábazatára 10 cm vastag zártcellás hőszigetelés kerül. Homlokzata szilikonos vakolattal, a lábazat mozaik vakolattal burkolt. A fafödémmel ellátott ház nyeregtetőjére Bramac cserepet terveztek, födémen 30 cm szigeteléssel. Bádogos szerkezetek antracit színű, porfestett kivitelben készülnek. Műanyag 3 rétegű nyílászárói alu redőnyökkel, szúnyoghálóval felszereltek. Az ablakok gránit könyöklővel kerülnek kialakításra. Az ingatlan elektromos ellátása 3x25 Amper. Fűtése hőszivattyúval történik, padlófűtéses hőleadással. A meleg vizet is a hőszivattyú állítja elő indirekt tárolóval. Az egyenletes hőmérséklet eléréséhez a nappaliban split klíma kerül felszerelésre. A beruházó vízlágyítót is kiépít az ingatlanokban. Hideg-meleg burkolatok, beltéri ajtók, szaniterek, csaptelepek választhatók. A hidegburkolatok 10 000 Ft/m2, míg a melegburkolatok 8 000 Ft/m2 árban lett meghatározva. Az ingatlanok kocsibeállóval érintkeznek. A beruházó a vételárban 60 m2 térburkolatot vállal. Az építkezést tapasztalt, megbízható, kiváló referenciákkal rendelkező vállalkozás végzi.
Országh Eszter

Országh Eszter

Hívjon bizalommal

+36-30-648-Mutasd!

További hirdetéseim

Ingatlaniroda
GDN Ingatlanhálózat - HázPont
+36 30 785 2223

Küldjön üzenetet

Visszahívást kérek

Hasonló ingatlanok