Eladó Ikerház Göd - Felsőgöd

211 m2Alapterület 6 Szoba
134 900 000 Ft Ár
395296Azonosító
További adatok

536 m2 Telek

Kertre néző Kilátás

Jó állapotú Állapot

Tégla Szerkezet

17 m2 Erkély/terasz

Gáz (cirkó) Fűtés

Dupla komfort Komfort

Saját garázs Parkolás

Tömegközlekedés

Amerikai konyhás

Van Kertkapcsolat

1985 Építés éve

Délkeleti Tájolás

Hitelkalkuláció – a részletekért kattintson valamelyik bank logójára!

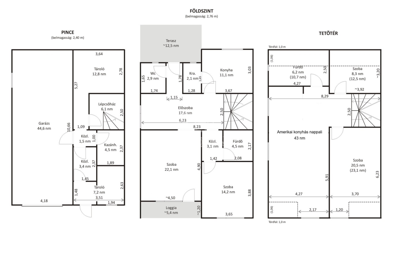
Göd-Felsőgöd kertvárosi környezetében, csendes, aszfaltozott utcában, kiváló közlekedés és ellátottság mellett, 536nm-es összközműves szinteltolásokkal tagolt telken, 1985-ben téglából épült, 3 szintes, (garázs/tároló, földszint, emelet) betonfödémes, 211nm-es lakóterületű, 6 szobás, dupla komfortos, dupla konyhás, kamrás, napos-világos Dk-i fekvésű, gázkazán és vegyestüzelésű kazán fűtésű, belső lépcsőházzal összekötött, de külön bejárattal rendelkező, szeparált, jó állapotú, 2017-ben részben felújított, klimatizált, rugalmasan birtokba vehető 2 generációs ikerház fél, beépített, gépesített konyhával, közvetlenül a házból is megközelíthető tárolóval és 2 gépkocsi számára alkalmas fűtött garázzsal, karbantartott, teraszos kialakítású gondozott kerttel, fúrt kúttal, kulturált környezetben eladó.
Az ingatlanban 2017-ben az elektromos hálózat, a fűtés rendszer, valamint a vízhálózat felújításra került.

A környék biztonságos, infrastruktúrája, közlekedése kitűnően ellátott.
Felsőgödi vasútállomás 900 méterre.

A közelben oktatási intézmény, általános Iskola, sportcsarnok, bevásárlási lehetőségek.

Ezt a házat érdemes megnézni!
További részletes információkért és a megtekintéssel kapcsolatosan várom megtisztelő hívását.
EA
Országh Eszter

Országh Eszter

Hívjon bizalommal

+36-30-648-Mutasd!

További hirdetéseim

Ingatlaniroda
GDN Ingatlanhálózat - HázPont
+36 30 785 2223

Küldjön üzenetet

Visszahívást kérek

Hasonló ingatlanok