Eladó Lakás (téglaépítésű) Kőszegszerdahely - Kőszeg

46 m2Alapterület 1 + 1 Szoba
47 900 000 Ft Ár
394180Azonosító
További adatok

Kertre néző Kilátás

Új Állapot

Tégla Szerkezet

14 m2 Erkély/terasz

Egyéb Fűtés

Összkomfort Komfort

Utcán, közterületen Parkolás

Emelet 1

Nincs Lift

Gyenge Tömegközlekedés

Amerikai konyhás

Nincs Kertkapcsolat

2027 Építés éve

Hitelkalkuláció – a részletekért kattintson valamelyik bank logójára!

Természet + otthon!

MITŐL EGYEDI EZ A LAKÓPARK?
MERT A KIVITELEZŐ SZÁMÁRA VALÓBAN FONTOS, HOGY
- A MAGAS MINŐSÉGGEL,
- AZ ÉLHETŐ TEREKKEL,
- A TERMÉSZET KÖZELI KÖRNYEZETTEL,
IGAZI OTTHONT BIZTOSÍTSON ELÉRHETŐ ÁRON!!

Befektetők figyelem: a növekvő Ausztriai munkavállalók által igényelt albérletek iránti kereslet egyre fokozódik.
Amennyiben nem rövidtávú befektetésben gondolkodna, tekintse úgy, mint egy garantált előre befektetett hosszútávú nyereséget!

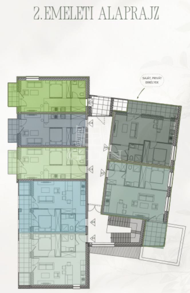
A 3 szintes lakóépület földszintjén, illetve első és második emeletén további lakások helyezkednek el, melyek 29, 30, 39, 40 és 46 m2 alapterületűek.

Épület szerkezeti és műszaki jellemzők:
- sávalapozása,
- falazat: 30 cm Porotherm n+F tégla,
- lakáselválasztó falak 30 cm-es tégla szerkezetű,
- födém: Leier gerendás szerkezet,
- szigetelés: 20 cm homlokzati, 25 cm kőzetgyapot födémszigetelés, a lapos tetőnél 25-32 cm lépésálló szigetelés, földszinti padozatban 10 cm hőszigetelő lemez,
- 3 rétegű nyílászárók,
- hűtés-fűtés: korszerű split-légkondícionáló, valamint infra-padlófűtés,
- elektromosság: 1x32 Amper (H-tarifa kábelezés kiépítésével)

Figyelem: A vételár nem tartalmazza: a konyhabútort, beépített bútorokat, lámpatesteket, valamint a H-tarifa mérőt.
Országh Eszter

Országh Eszter

Hívjon bizalommal

+36-30-648-Mutasd!

További hirdetéseim

Ingatlaniroda
GDN Ingatlanhálózat - HázPont
+36 30 785 2223

Küldjön üzenetet

Visszahívást kérek

Hasonló ingatlanok