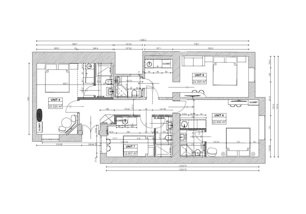
| 87 m2Alapterület | 4 Szoba |
| 185 320 000 Ft Ár | |
| 393419Azonosító | |
| További adatok | |
Udvari Kilátás
Újszerű Állapot
Tégla Szerkezet
Elektromos Fűtés
Komfort Komfort
Utcán, közterületen Parkolás
Emelet Félemelet
Nincs Lift
Kiváló Tömegközlekedés
Nem Amerikai konyhás
Nincs Kertkapcsolat
1950 Építés éve
Északkeleti Tájolás