Eladó Családi ház Budapest XVII. kerület - Nyugalom és modern kényelem!

83 m2Alapterület 1 + 4 Szoba
138 000 000 Ft Ár
392029Azonosító
További adatok

613 m2 Telek

Udvari Kilátás

Újszerű Állapot

Tégla Szerkezet

11 m2 Erkély/terasz

Gáz (cirkó) Fűtés

Összkomfort Komfort

Saját beálló Parkolás

Tömegközlekedés

Amerikai konyhás

Van Kertkapcsolat

2018 Építés éve

Déli Tájolás

Hitelkalkuláció – a részletekért kattintson valamelyik bank logójára!

Modern családi otthon nyugodt környezetben – eladó újszerű ház Rákoskerten!

Ha egy csendes, zöld környezetben lévő, mégis modern és kényelmes otthont keresel, akkor ezt a házat érdemes megnézned!

Budapest XVII. kerületének közkedvelt rákoskerti részén eladó egy 2018-ban épült, újszerű állapotú családi ház, amelyet azóta is gondosan karbantartanak. A ház harmonikus hangulatú, praktikus elosztású, és ideális választás családok számára.
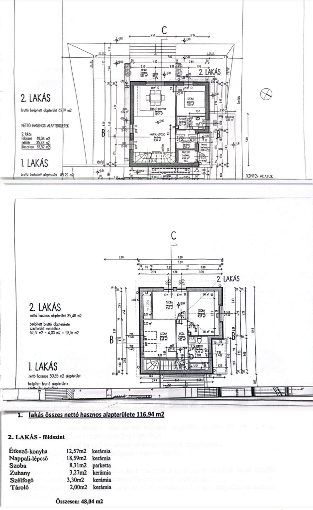
Rendkívül jól átgondolt elrendezés!
A házba belépve egy barátságos előszoba fogad, ahonnan:
jobbra egy zuhanyzós fürdőszoba,
balra egy háztartási helyiség és kamra,
szemben pedig a világos, amerikai konyhás nappali található.
A nappaliból nyílik egy földszinti hálószoba, amely dolgozószobaként is igen hasznos lehet. Az étkező pedig közvetlen teraszkapcsolattal rendelkezik, így a kert és a belső tér tökéletesen összekapcsolódik.
Az emeleten további 3 külön nyíló hálószoba és egy kádas fürdőszoba kapott helyet, ami kényelmes életteret biztosít akár nagyobb családoknak is.

Műszaki tartalom:
 gázcirkó fűtés
 padlófűtés a földszinti hidegburkolatos helyiségekben
 radiátoros hőleadás a szobákban
 emeleti klíma a nyári komfortért
 videós kaputelefon
 riasztórendszer előkészítés

Hangulatos kert
A gondozott udvarban egy külön kialakított kerti sütögető rész várja a családi és baráti összejöveteleket – tökéletes hely egy nyári grillezéshez vagy esti beszélgetésekhez.

Miért jó választás?
✔ csendes, családbarát környék
✔ újszerű, modern állapot
✔ praktikus elrendezés
✔ hangulatos kert
✔hitelezhető ingatlan
A telek osztatlan közös, de fizikálisan szétválasztott, mindenki saját udvarral rendelkezik. Ügyvédi használati megosztás kész van.

Ez a ház tökéletes választás mindazoknak, akik a városi élet kényelmét szeretnék ötvözni a nyugodt, otthonos környezettel.
Amennyiben a megvásárláshoz hitelre van szüksége, bankfüggetlen hitelcentrumunk egyedi ajánlatokkal is térítésmentes áll ügyfeleink rendelkezésre az egész hitelfelvételi folyamat során.
Országh Eszter

Országh Eszter

Hívjon bizalommal

+36-30-648-Mutasd!

További hirdetéseim

Ingatlaniroda
GDN Ingatlanhálózat - HázPont
+36 30 785 2223

Küldjön üzenetet

Visszahívást kérek

Hasonló ingatlanok