Eladó Családi ház Székesfehérvár - Belváros közelében

79 m2Alapterület 2 Szoba
74 900 000 Ft Ár
382379Azonosító
További adatok

239 m2 Telek

Utcai Kilátás

Közepes Állapot

Tégla Szerkezet

Gáz (cirkó) Fűtés

Összkomfort Komfort

Saját garázs Parkolás

Tömegközlekedés

Amerikai konyhás

Van Kertkapcsolat

1980 Építés éve

Hitelkalkuláció – a részletekért kattintson valamelyik bank logójára!

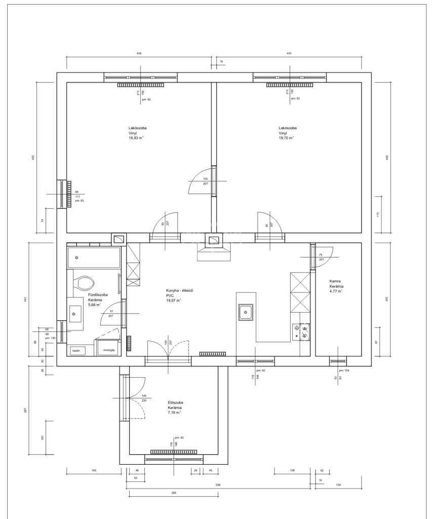
H-004162. Székesfehérváron a Belváros közelében, kedvelt családiházas környéken, 239 m2-es önálló telken 79 m2-es 2 szobás, tégla építésű családi ház garázzsal, melléképülettel felújítva eladó.

Az ingatlan jól megközelíthető, a közelben belváros, buszmegálló, bevásárló központ, iskola, óvoda, orvosi rendelő egyaránt megtalálható.

A ház 1980 körül épült, terméskő alappal, kisméretű téglából, palafedéssel (jelenleg zsindelyfedésű alatta pala ). A födém járható. A házon 10cm külső szigetelés található. A mostani tulajdonos az épületet felújította 2024-2025-ben, az ajzat szigetelése megtörtént .A nyílászárók 3 rétegű korszerű, műanyag szerkezetű ablakok kerülnek beépítésre, alu redőnnyel, rovar hallóval. Fűtésről és a melegvíz ellátásról új kombi gázkazán gondoskodik, új radiátoros rendszerrel. A víz és elektromos vezetékrendszer is teljesen új. Áramellátás 32A. A konyha helyének kialakítása lehetővé teszi akár konyhasziget elhelyezését is. Konyhabútort az ár nem tartalmaz.

A ház 79m2 hasznos alapterületű, elosztását tekintve:
- előszoba, konyha- étkező, 2 nagyszoba, fürdőszoba wc-vel, kamra + feljárat a padlásra.

A telek teljesen bekerített, található rajta egy kis fatároló, és garázs.

A ingatlan adottságainak, fekvésének köszönhetően a tetőn napelemek is elhelyezhetők, melyek tovább csökkentik a ház rezsiköltségét, a beruházást akár pályázat útján is lehet finanszírozni.
A ház a kényelmes otthont biztosít a lakók számára, mind a belső lakrészben, mind a kert, udvar, illetve a terasz területén. A vásárláshoz, a jelenleg aktuális családok otthonteremtésére vonatkozó összes támogatás igénybe vehető (Felújítási támogatás, Jelzáloghitel, Babaváró kölcsön…)
Eladási irányára: 74,9 M Ft
Ha felkeltette érdeklődését, hívjon bizalommal (hétvégén is) éljen ingyenes, személyre szabott hitelügyintézés szolgáltatásunkkal. Segítünk továbbá adásvételhez szükséges ügyvédi közreműködésben, energetikai tanúsítvány, valamint értékbecslés elkészítésében.
For English details please send us a message or an e-mail, thank you.
Országh Eszter

Országh Eszter

Hívjon bizalommal

+36-30-648-Mutasd!

További hirdetéseim

Ingatlaniroda
GDN Ingatlanhálózat - HázPont
+36 30 785 2223

Küldjön üzenetet

Visszahívást kérek

Hasonló ingatlanok