Kiadó Üzlethelyiség Székesfehérvár - Gyümölcs utca

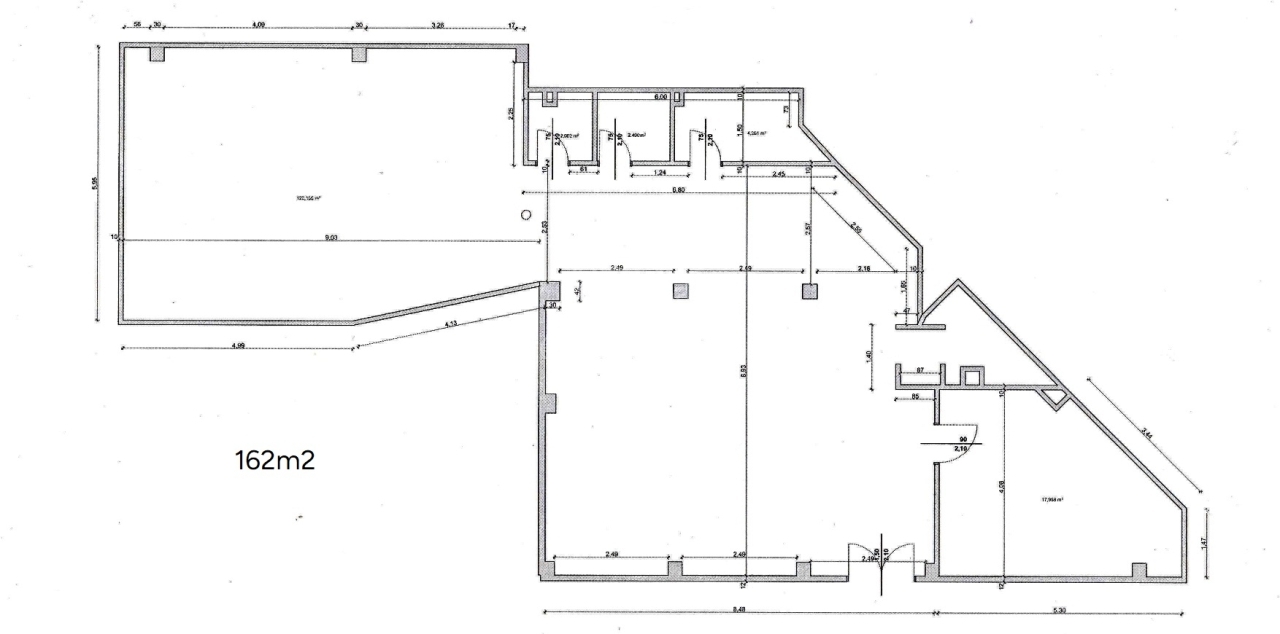
162 m2Alapterület 0 Szoba
454 000 Ft /Hó Ár
390140Azonosító
További adatok

Utcai Kilátás

Jó állapotú Állapot

Tégla Szerkezet

Gáz (cirkó) Fűtés

Utcán, közterületen Parkolás

Kiváló Tömegközlekedés

1989 Építés éve

Bip-004675. Gyümölcs utcában, összesen 300m2 alapterületű utcafronti, nagykirakatos üzlethelyiség / iroda, egyeben vagy megosztva kiadó, illetve eladó!

A Horvát István utca és a Gyümölcs utca sarán, zöld környezetben található részben felújított üzlethelyiség irodai és szolgáltatási tevékenységekre egyaránt alkalmas.
A belvároshoz közeli elhelyezkedés könnyű megközelíthetőséget és jó ügyfélforgalmat biztosít, a közelben pedig utcai parkolás könnyen elérhető. Az üzlethelyiség belső kialakítása előzetes egyeztetés alapján rugalmasan alakítható, így könnyen a leendő bérlő igényeire szabható.

Az üzlethelyiség jelenleg két részre, egy 138m2 és egy 162m2 alapterületű egységre van bontva. Igény esetén összenyitva, egyben vagy megosztva, a jelenlegi állapotában is bérbe vehető.

Mindkét ingatlanrész rendelkezik széles utcafronti kirakattal, saját bejárattal és vizesblokkal, rezsifogyasztás külön mérhető. Fűtése önálló gázkazán radiátoros hőleadással, amely a közelmúltban került felújításra. Új hűtő-fűtő klímák találhatók mindkét üzletben.

Az ingatlan klasszikus irodai tevékenységen túl ideális választás lehet szépségipari szolgáltatások, magánrendelő, bemutatóterem, kisebb fitness- vagy jógastúdió, illetve banki vagy biztosítói tevékenység számára.

Bérleti díj: (nem áfás) +rezsi + 2 hó kaució
138m2 – 366e Ft/hó
162m2 – 454e Ft/hó
300m2 – 820e Ft/hó
Közös költség a teljes terület vonatkozásában 45.000Ft/hó, amely részarányosan kerül leosztásra a két helyiség között.





Ha felkeltette érdeklődését, hívja irodánkat bizalommal, éljen ingyenes, személyre szabott hitelügyintézés szolgáltatásunkkal. Segítünk továbbá adásvételhez szükséges ügyvédi közreműködésben, energetikai tanúsítvány, valamint értékbecslés elkészítésében.

For English details please send us a message or an e-mail, thank you.
Országh Eszter

Országh Eszter

Hívjon bizalommal

+36-30-648-Mutasd!

További hirdetéseim

Ingatlaniroda
GDN Ingatlanhálózat - HázPont
+36 30 785 2223

Küldjön üzenetet

Visszahívást kérek

Hasonló ingatlanok