Eladó Lakás (téglaépítésű) Budapest XII. kerület - Kútvölgy kertkapcsolatos lakás-ház

195 m2Alapterület 5 + 1 Szoba
279 999 000 Ft Ár
386605Azonosító
További adatok

1100 m2 Telek

Panoráma Kilátás

Felújítandó Állapot

Tégla Szerkezet

20 m2 Erkély/terasz

Gáz (cirkó) Fűtés

Dupla komfort Komfort

Saját beálló Parkolás

Emelet Földszint

Nincs Lift

Közepes Tömegközlekedés

Nem Amerikai konyhás

Van Kertkapcsolat

1940 Építés éve

Közös költség 65 000 Ft

Hitelkalkuláció – a részletekért kattintson valamelyik bank logójára!

Eladásra kínálunk Kútvölgy kedvelt részén egy Ősfás 1100 m2 területen elhelyezkedő patinás „lakást – házat” amely közvetlen 500 m2-es kertkapcsolattal rendelkezik.

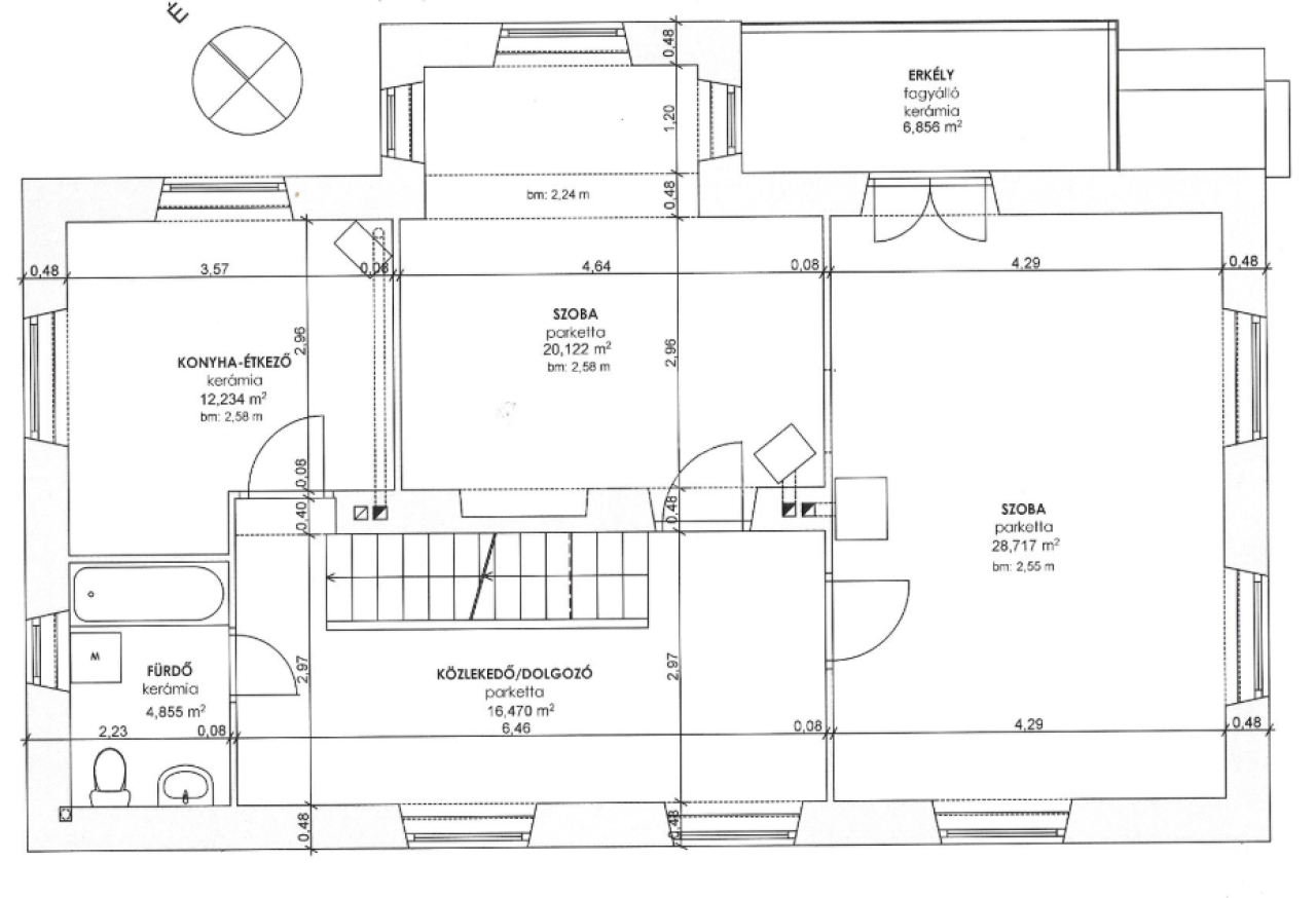
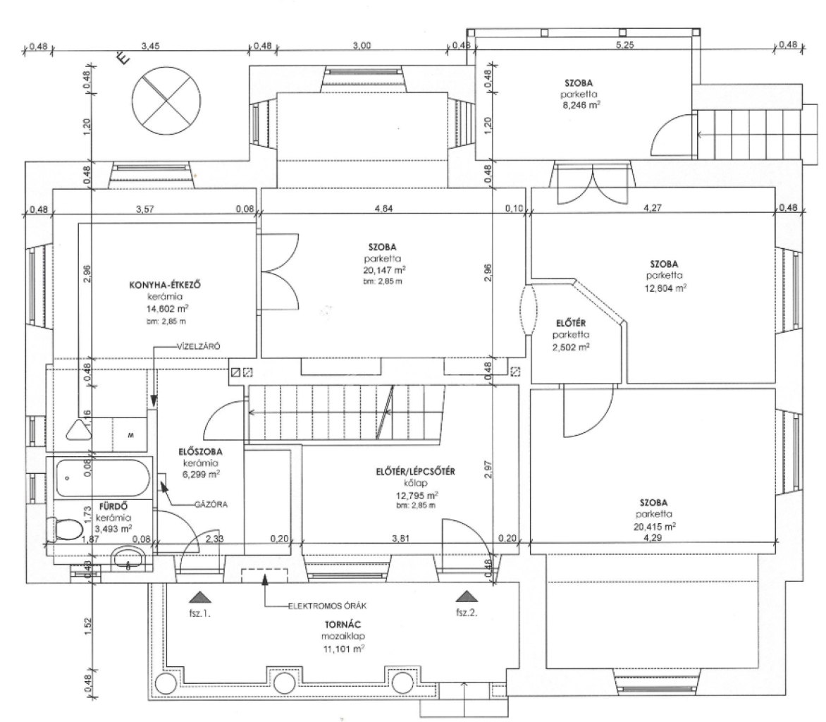
A 195 m2-es lakás két szinten helyezkedik el, ami jelenleg két különálló és külön bejárattal rendelkező lakásra van megosztva, földszint 95 m2 – első emelet 100 m2 + 500 m2 kertrész.

A lakások a meglévő belső feljárattal újra összenyithatóak – amellyel az eredeti állapotnak megfelelő 5 szobás lakás alakítható ki. A lakás a közvetlen kertrész miatt olyan, mintha ha egy önálló ház lenne, amit két utcáról is meg lehet közelíteni.

Potenciális befektetési lehetőség lehet vállalkozóknak, amennyiben a két lakást hivatalosan szétválasztják - felújítják és kertrészeket megosztják. A kialakított ingatlan elemeket tovább tudják értékesíteni.

A 195 m2 lakás elrendezése:

Földszint:
• 3 db. szoba, 1 db. félszoba
• Konyha
• Fürdőszoba
• Közlekedő

Emelet:
• 3 db. szóba
• Közlekedő -dolgozó sarok
• Konyha
• Fürdőszoba
• Előtér - lépcsőház

Tároló - pince:
• 30 m2

Kert:
• Közvetlen 500 m2 kertrész + kerti kemence
• Egyéb kertrész 200 m2
• 1 db. kocsibeálló

A társasházban 2 db. lakás található az eladásra kínált 195 m2 (földszint - emelet) + alagsori szinten található 60 m2 -es.

A ház 1940-ben épült 55 cm vastag téglafalakkal. Az épület szerkezetileg jó állapotú – feljutása és korszerűsítése esedékes.

Az ingatlant fiatal pároknak -családoknak és vállalkozóknak egyaránt ajánljuk.

Amennyiben Önnek a vásárláshoz szüksége lenne hitelre egyedi kedvezménnyel,kezdeményezheti a kapcsolatfelvételt bankfüggetlen hitelügyintézőinkkel, teljesen DÍJMENTESEN.

Az ingatlan részletes ismertetése és bemutatása előre egyeztetett időpontban lehetséges, melyet nagyon rugalmasan kezelünk, akár HÉTVÉGÉN is.

Amennyiben felkeltette az érdeklődését, további kérdéseivel kapcsolatban várom jelentkezését!
Országh Eszter

Országh Eszter

Hívjon bizalommal

+36-30-648-Mutasd!

További hirdetéseim

Ingatlaniroda
GDN Ingatlanhálózat - HázPont
+36 30 785 2223

Küldjön üzenetet

Visszahívást kérek

Hasonló ingatlanok