Eladó Családi ház Szada - Szada zsákutcájában

145 m2Alapterület 5 Szoba
94 900 000 Ft Ár
384386Azonosító
További adatok

288 m2 Telek

Kertre néző Kilátás

Felújított Állapot

Tégla Szerkezet

25 m2 Erkély/terasz

Gáz (cirkó) Fűtés

Dupla komfort Komfort

Saját beálló Parkolás

Tömegközlekedés

Amerikai konyhás

Van Kertkapcsolat

1998 Építés éve

Délnyugati Tájolás

Hitelkalkuláció – a részletekért kattintson valamelyik bank logójára!

SZADA CSENDES ZSÁK UTCÁJÁBAN, EGYEDI KIALAKÍTÁSÚ, FELÚJÍTOTT ÁLLAPOTÚ, 2 GENERÁCIÓS CSALÁDI HÁZ ELADÓ!!!

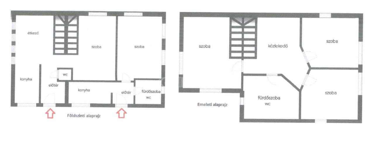
Szada csendes zsák utcájában, kertvárosi környezetben, 288 nm-es telken lévő, 1998-ban épült, de 2007-ben és 2022-ben teljeskörűen felújított és kibővített, vasbeton födémes, két szintes, szigetelt (10cm dryvit), felújított állapotú, bruttó 170 nm-es, 5 szobás, Dél - Nyugati fekvésű, 2 GENERÁCIÓS (külön bejárattal, de vissza is alakítható 1 generációsra), gáz cirkó fűtéses (radiátoros hőleadással), klímával felszerelt, műanyag thermo nyílászárós, rugalmasan birtokba vehető, családi ház eladó.

A nagyobbik lakrészen (110 nm) amerikai konyhás, étkezős nappali, 3 hálószoba, fürdőszoba, wc lett kialakítva két szinten.

A kisebbik lakrész 35 nm-es, földszintes 1 szobával, fürdőszobával, konyhával nyerte el jelenlegi állapotát.

A zárt udvaron 2 autóval meg lehet állni, a kertben egy nagy terasz (25 nm), boros pince (8nm), tároló, bográcsozó kapott helyet.

A környék ellátottsága, infrastruktúrája jó, sétatávolságra iskola, óvoda, gyermekorvosi rendelő, játszótér található, közvetlen buszjárattal elérhető Budapesten a Stadionok Metró megálló, továbbá személygépkocsival az M0-ás, M3-mas autópálya, Tesco, Stop Shop perceken belül megközelítehető!

Érdemes megnézni, bővebb információért hívjon bizalommal akár hétvégén is!
L.D

INGYENES hitel tanácsadás, CSOK PLUSSZ, OTTHON START ügyintézés!
BANKFÜGGETLEN hitelcentrumunk az összes elérhető bank és hitelintézet ajánlatát versenyezteti az Ön kedvéért, ráadásul DÍJMENTESEN.

- Egyedi, bankfiókban nem elérhető kamat- és díjkedvezmények
- Hitelképesség vizsgálat
- Idő, energia és pénz megtakarítás
- Teljes hivatali ügyintézés
Országh Eszter

Országh Eszter

Hívjon bizalommal

+36-30-648-Mutasd!

További hirdetéseim

Ingatlaniroda
GDN Ingatlanhálózat - HázPont
+36 30 785 2223

Küldjön üzenetet

Visszahívást kérek

Hasonló ingatlanok