Eladó Családi ház Gödöllő - Vasvári Pál utca

450 m2Alapterület 8 Szoba
184 000 000 Ft Ár
394060Azonosító
További adatok

2631 m2 Telek

Kertre néző Kilátás

Jó állapotú Állapot

Tégla Szerkezet

52 m2 Erkély/terasz

Gáz (cirkó) Fűtés

Luxus Komfort

Saját garázs Parkolás

Tömegközlekedés

Nem Amerikai konyhás

Van Kertkapcsolat

2002 Építés éve

Délkeleti Tájolás

Hitelkalkuláció – a részletekért kattintson valamelyik bank logójára!

Gödöllő csendes, aszfaltozott utcájában, idilli környezetben, minőségi anyagokból megépített, IMPOZÁNS, 3 alternatív fűtési lehetőséggel rendelkező, TÖBB GENERÁCIÓS CSALÁDI HÁZ - 3 külön lakrésszel, télikerttel, két állásos garázzsal, boros pincével - ELADÓ!

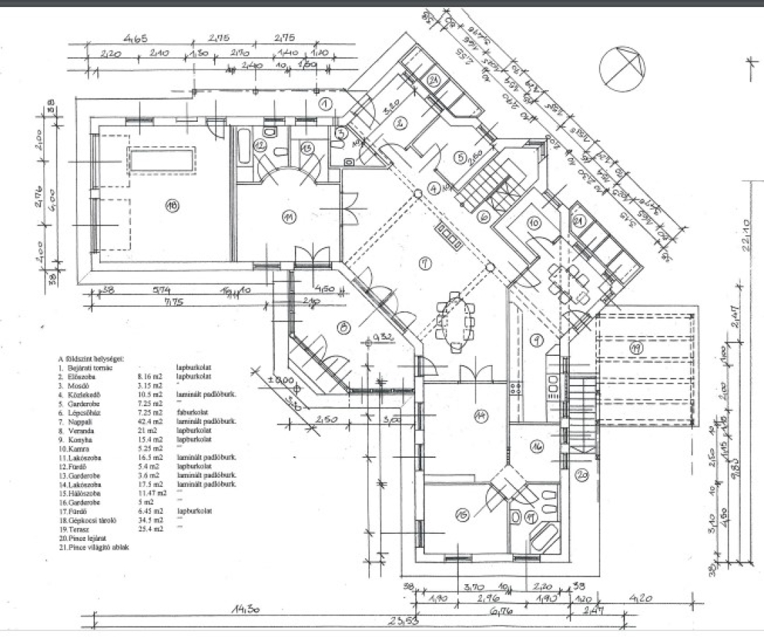
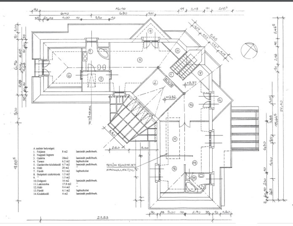
Alapterület:
Földszint: 250 nm
Emelet : 100 nm
Pinceszint: 100 nm

Telekméret: 2 631 nm

Az ingatlanban hatalmas átriumos nappali, 8 szoba, 4 fürdőszoba, 3 konyha, télikert , külső kertkapcsolatos terasz, a pinceszinten mosókonyha, kazánház és tároló - háztartási helyiségek, a kertben boros pince szolgálja a lakók kényelmét.

A ház fűtése nagy teljesítményű vaillant gázkazánnal és/vagy szintén pémium minűségű faelgázosító kazánnal megoldott, a földszinten padlófűtéssel, az emeleten radiátoros hőleadással.
A fűtés helyiségenként külön szabályozható.
A hatalmas nappaliban kandalló, vagy cserépkályha bekötése is lehetséges, az ehhez szükséges impozáns kémény rendelkezésre áll.

Az ingatlan rendelkezik az önkormányzat által kiállított HATÓSÁGI igazolvánnyal a több lakóegységről, így kedvezményes díjjal igénybe vehető a gázszolgáltatás.

Az óriási, csodás növényzettel borított, már szépen beállt kertben jól esik a pihenés, valamint méreténél fogva számos további lehetőséget rejt magában: akár nagy méretű úszómedence, vagy egyéb építmény is létesíthető.
Beépíthetőség:25 %
Zöldterület mutató: 60%

Mind az ingatlan elhelyezkedése, mind pedig belső kialakítása több féle hasznosítási célra teszi alkalmassá:

A ház jelen formájában ideális akár 2-3 generáció együttélésére, de éppúgy jó választás szálláshely szolgáltatásban, vendéglátásban gondolkodók számára, vagy cégközpontnak, oktatási, - rendezvény helyszínnek.

Az eltelt évek során több generációnak is kényelmes otthonául szolgált és mai napig szolgál ez a ház, amely Gödöllő egyik legszebb városrészében, nyugodt, családi házas övezetben várja új tulajdonosát.

Kérem, hogy kérdéseivel és időpont egyeztetés céljából forduljon hozzám bizalommal.

ID:373086
Országh Eszter

Országh Eszter

Hívjon bizalommal

+36-30-648-Mutasd!

További hirdetéseim

Ingatlaniroda
GDN Ingatlanhálózat - HázPont
+36 30 785 2223

Küldjön üzenetet

Visszahívást kérek

Hasonló ingatlanok