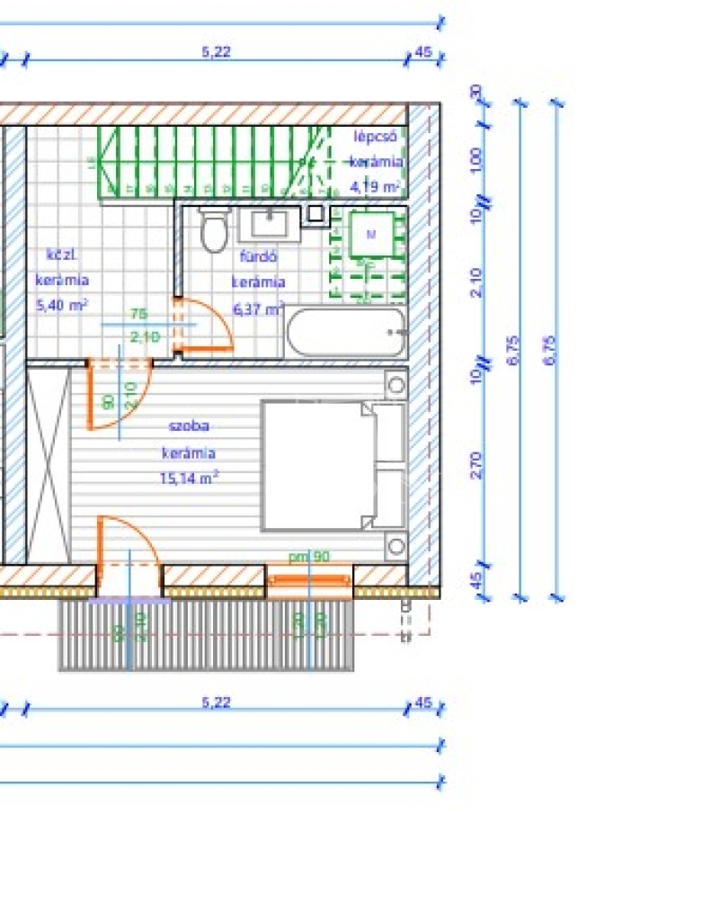
| 62 m2Alapterület | 3 Szoba |
| 94 900 000 Ft Ár | |
| 390239Azonosító | |
| További adatok | |
Udvari Kilátás
Új Állapot
Tégla Szerkezet
20 m2 Erkély/terasz
Egyedi kazán Fűtés
Összkomfort Komfort
Garázs/beálló vásárolható Parkolás
Emelet Földszint
Nincs Lift
Kiváló Tömegközlekedés
Amerikai konyhás
Nincs Kertkapcsolat
2025 Építés éve