Eladó Családi ház Szeged - Szeged-Szentmihály kedvelt részén

248 m2Alapterület 5 Szoba
199 000 000 Ft Ár
385638Azonosító
További adatok

1038 m2 Telek

Kertre néző Kilátás

Jó állapotú Állapot

Tégla Szerkezet

22 m2 Erkély/terasz

Gáz (cirkó) Fűtés

Összkomfort Komfort

Saját garázs Parkolás

Kiváló Tömegközlekedés

Nem Amerikai konyhás

Van Kertkapcsolat

1992 Építés éve

Hitelkalkuláció – a részletekért kattintson valamelyik bank logójára!

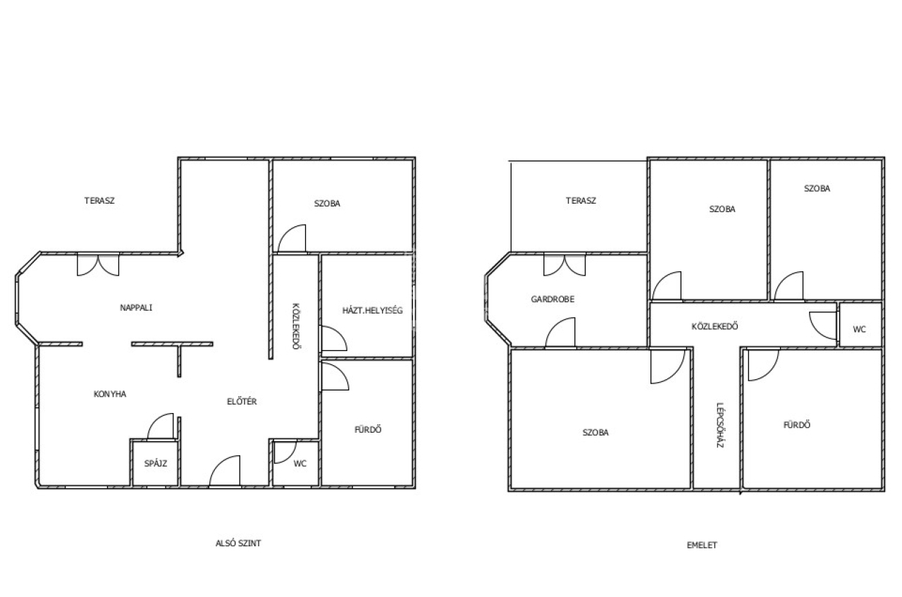
Szeged-Szentmihályon vált eladóvá ez az igényes, 248 m2-es, 2 szintes családi ház 1038 m2-es telken.
Az ingatlan Szentmihály új részén, csendes utcában található.
A földszinti rész 124m2, tetőtér 124m2, míg a pince 61m2.
A ház 1992-ben épült, tégla szerkezetű, a külső homlokzat szigetelve van és korszerű műanyag nyílászárók lettek beépítve.
Az épület mögött található a 36 m2-es, különálló dupla garázs áll.
Szépen parkosított kertben, kiépített úszómedence található tisztító, vízforgató rendszerrel ellátva. Továbbá kis hangulatos halastó, pavilon, grillező, kemence helyezkedik el.
A földszinten kapott helyet a 42 m2 nappali, kandallóval, ami nem csak látványos, de jelentős hőt is termel. Klasszikus konyha, kamra, fürdőszoba, külön WC, hálószoba, háztartási helyiség.
Az emeleten három tágas hálószoba, fürdőszoba, külön WC.
A ház fűtése a pincében elhelyezett gázkazánról történik padlófűtéssel, a hűtésről pedig klíma gondoskodik.

Az ingatlan a gondos kezek nyomán nagyon szép állapotú, a kertben különleges nővények kaptak helyet, igazi nyugalom szigete az itt élők számára.
Kiváló elhelyezkedése miatt több gyermekes családok ideális otthona lehet, de több generáció együttélésére is alkalmas.
Az épülő BYD- autógyár 10 perc autóval, sorompó és közlekedési lámpa nélkül kiszámíthatóan elérhető.

Az ingatlan tehermentes, 3 hónapon belül költözhető.

NÉZZE MEG AJÁNLATUNKAT SZEMÉLYESEN IS!
Országh Eszter

Országh Eszter

Hívjon bizalommal

+36-30-648-Mutasd!

További hirdetéseim

Ingatlaniroda
GDN Ingatlanhálózat - HázPont
+36 30 785 2223

Küldjön üzenetet

Visszahívást kérek

Hasonló ingatlanok