Eladó Családi ház Érd - Almafa utca közelében

173 m2Alapterület 5 Szoba
169 000 000 Ft Ár
394271Azonosító
További adatok

681 m2 Telek

Kertre néző Kilátás

Jó állapotú Állapot

Tégla Szerkezet

38 m2 Erkély/terasz

Gáz (cirkó) Fűtés

Összkomfort Komfort

Saját garázs Parkolás

Tömegközlekedés

Nem Amerikai konyhás

Van Kertkapcsolat

2001 Építés éve

Délkeleti Tájolás

Hitelkalkuláció – a részletekért kattintson valamelyik bank logójára!

Eladó önálló családi ház Érden!

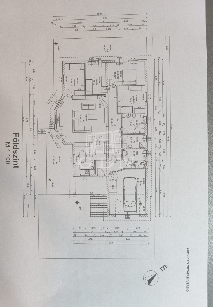
Érd Parkvárosban kínálunk megvételre egy nettó 173 nm alapterületű, téglából épült, önálló családi házat 38 nm-es részben fedett terasszal 681 nm-es telken.

A telken található még, egy 15 nm-es téliesített faház / víz, villany bevezetve /, 30 nm-es fedett terasszal és egy 10 nm-es kerti tároló
/villany bevezetve/.

Műszaki paraméterek:
- műanyag nyílászárók aluminium redőnnyel szerelve,
- hőszigetelt beton födém,
- külső szigetelés hungarocel + hőszigetelő vakolat,
- fűtést kandalló + gáz cirkó biztosítja, radiátoros hőleadás,
- 2 db hűtő-fűtő klíma,
- napelem rendszer működik.

Ingatlan beosztása:
- előszoba 7,45 nm,
- WC, mosdó 1,7 nm,
- kamra 2,55 nm,
- háztartási helyiség 4,5 nm,
- fürdőszoba/zuhanyzós/ 5,4 nm,
- fürdőszoba /sarokkádas/ 7,8 nm,
- közlekedő 11,89 nm,
- szoba 12,96 nm,
- szoba 14,4 nm,
- szoba 11,53 nm,
- szoba 10,94 nm,
- nappali 38,74 nm,
- konyha 15,01 nm,
- fűtött garázs 28,06 nm,
------------------------------
nettó: 172,93 nm

Buszmegálló a közelben. Iskola, orvosi rendelő, gyógyszertár, üzletek séta távolságra található.

Amivel segítjük az Ön ingatlanvásárlását:

- ingyenes hitelügyintézés,
- jogi háttér,
- földhivatali ügyintézés,
- energetikai tanúsítvány,
- a vevő számára az ingatlanközvetítés ingyenes.

Irodánk 30 éves szakmai tapasztalattal áll ügyfelei rendelkezésére!

Várom szíves megkeresését!
Országh Eszter

Országh Eszter

Hívjon bizalommal

+36-30-648-Mutasd!

További hirdetéseim

Ingatlaniroda
GDN Ingatlanhálózat - HázPont
+36 30 785 2223

Küldjön üzenetet

Visszahívást kérek

Hasonló ingatlanok