Eladó Családi ház Biatorbágy - Nagy telekkel központi helyen

136 m2Alapterület 2 + 1 Szoba
149 900 000 Ft Ár
376748Azonosító
További adatok

2881 m2 Telek

Udvari Kilátás

Felújítandó Állapot

Vegyes falazat Szerkezet

Gáz (cirkó) Fűtés

Összkomfort Komfort

Saját beálló Parkolás

Tömegközlekedés

Nem Amerikai konyhás

Van Kertkapcsolat

1917 Építés éve

Keleti Tájolás

Hitelkalkuláció – a részletekért kattintson valamelyik bank logójára!

Biatorbágyon, FREKVENTÁLT helyen kínálunk eladásra egy sokféleképpen hasznosítható, felújítandó, autentikus parasztházat, melyhez kivételesen nagy terület tartozik. Az épület régi, hiszen 1917-ben épült, viszont megőrizte a régi idők báját, amit igazán csak a helyszínen érez át az ember, mikor látja.

Az ingatlan kimondottan alkalmas bármilyen tevékenységre, melyhez szükséges a központi elhelyezkedés, a kitűnő megközelíthetőség és az utcafronti üzlethelyiség.
A HATALMAS telken, mely 2881nm, lehetőség van további telephely kialakítására is.

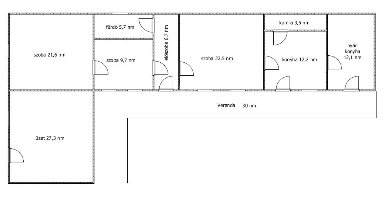
Autentikus tornácos ház – 136 m²

Két utcafronti szoba, amelyek közül az egyik ÜZLETHELYISÉGKÉNT is használható!
További két szoba, előszoba, konyha, fürdőszoba és egy nyári konyha biztosítja a kényelmet.
A helyiségek között kényelmes átjárás biztosított.
Az épülethez gazdasági melléképületek is kapcsolódnak.

Az épület vegyes falazatú, fafödémes, palatetős, nyílászárói fából készültek, a fűtést gáz cirkó biztosítja, alternatív megoldásként kályha is használható.

A telken különálló kocsibeálló áll rendelkezésre legalább két személyautónak, emellett találunk egy jó állapotú pincét is.

✅ Kiváló elhelyezkedés – frekventált környék, könnyű megközelíthetőség

A telek előtt parkolási lehetőség biztosított.
Buszmegálló a közelben.
Autóval is könnyen megközelíthető.

Utcafronti üzlethelyiség kialakítására alkalmas – ha vállalkozásban gondolkodsz, ez a helyszín garantáltan észrevehető!

Belső képek igény esetén e-mailben kérhetők.

Feltétlenül telefonáljon, ha VÁLLALKOZÁSÁHOZ olyan telephelyre van szüksége, mely könnyen észrevehető, jól megközelíthető és bővíthető!
Országh Eszter

Országh Eszter

Hívjon bizalommal

+36-30-648-Mutasd!

További hirdetéseim

Ingatlaniroda
GDN Ingatlanhálózat - HázPont
+36 30 785 2223

Küldjön üzenetet

Visszahívást kérek

Hasonló ingatlanok