Eladó Családi ház Kiskunlacháza - Csendes utca

78 m2Alapterület 3 + 3 Szoba
65 900 000 Ft Ár
393180Azonosító
További adatok

370 m2 Telek

Kertre néző Kilátás

Jó állapotú Állapot

Könnyűszerkezet Szerkezet

20 m2 Erkély/terasz

Elektromos Fűtés

Komfort Komfort

Saját beálló Parkolás

Gyenge Tömegközlekedés

Nem Amerikai konyhás

Van Kertkapcsolat

1982 Építés éve

Délnyugati Tájolás

Hitelkalkuláció – a részletekért kattintson valamelyik bank logójára!

Dunapart közeli családi ház saját stéggel – Kiskunlacháza üdülőövezetében

Eladásra kínálok Kiskunlacháza közkedvelt, csendes üdülőövezeti részén egy jó állapotú, kanadai fagerendás szerkezetű, dupla szigeteléssel épült családi házat, mindössze pár lépésre a vízparttól.

A 370 m²-es telken elhelyezkedő ingatlan alapterülete 78 m², melyhez egy 20 m²-es fedett, kertre néző terasz kapcsolódik — van hogy a reggeli kávét mókusok társaságában élvezheti az ingatlan gazdája.

A természet közelsége és a Dunapart hangulata ideális választássá teszi állandó otthonnak, nyaralónak vagy befektetésnek is.

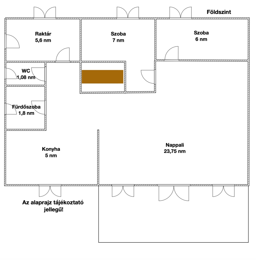
Helyiségek

Földszint:

tágas nappali

külön konyha (új mosogatógéppel)

fürdőszoba masszázszuhannyal

külön WC

tároló

2 félszoba (igény szerint egybenyitható)

Tetőtér:

2 szoba

gardrób

Műszaki tartalom

korszerűsített elektromos hálózat

okosvezérlésű, távirányítható elektromos fűtés

riasztórendszer

új kerítés és elektromos kapu

fa nyílászárók

fúrt kút + kerti csap

kerti tároló

Extra: saját stég

Az ingatlanhoz egy 16 m²-es saját stég is tartozik, amely két éve teljes felújításon esett át.

Elhelyezkedés

Kiskunlacháza központ: 5 perc autóval

Ráckeve: 8 perc autóval

nyugodt, zöldövezeti környezet

Az ingatlan hitelezhető, valamint per- tehermentes. Díjmentes, bankfüggetlen hiteltanácsadást biztosítunk ügyfeleink számára, melynek keretében hitelcentrumunk az összes elérhető bank és hitelintézet ajánlatát összehasonlítja és versenyezteti az Ön érdekei mentén. A folyamat egyszerű és átlátható: egy személyes vagy telefonos konzultáció során munkatársunk felméri az Ön igényeit és lehetőségeit, majd ezek alapján a bankok számára optimalizált ajánlatokat kér be. Célunk, hogy Ön hosszú távon is a legkedvezőbb, legbiztonságosabb finanszírozási konstrukciót kapja meg. A beérkezett ajánlatok közül végül Ön hozza meg a döntést, teljes körű szakmai támogatás mellett.

Ha felkeltette az érdeklődését, ne habozzon — jöjjön el, nézzük meg együtt és hagyja, hogy ez a csodás környezet Önt is elvarázsolja.
Országh Eszter

Országh Eszter

Hívjon bizalommal

+36-30-648-Mutasd!

További hirdetéseim

Ingatlaniroda
GDN Ingatlanhálózat - HázPont
+36 30 785 2223

Küldjön üzenetet

Visszahívást kérek

Hasonló ingatlanok