Eladó Családi ház Tököl - Csépi út

170 m2Alapterület 3 + 2 Szoba
136 900 000 Ft Ár
393050Azonosító
További adatok

652 m2 Telek

Kertre néző Kilátás

Felújított Állapot

Szilikát Szerkezet

10 m2 Erkély/terasz

Gáz (cirkó) Fűtés

Dupla komfort Komfort

Saját garázs Parkolás

Tömegközlekedés

Nem Amerikai konyhás

Van Kertkapcsolat

1988 Építés éve

Délkeleti Tájolás

Hitelkalkuláció – a részletekért kattintson valamelyik bank logójára!

TÖKÖL KERTVÁROSI RÉSZÉN 5 SZOBÁS DUPLA-KOMFORTOS, ALÁPINCÉZETT CSALÁDI HÁZ ELADÓ!

A város frekventált részén, a sportpályához közel, a csepeli busz (673, 676) megállójától kb. 3 percre, főútvonal közelében, de csendes zsákutcában lévő családi házunkat kínáljuk eladásra. A Ráckevei HÉV megálló kb. 10 perc gyaloglással elérhető. Bölcsőde, óvoda, általános iskola, művelődési ház is séta távolságban vannak.

A ház 1988-ban épült, 2000-ben, valamint 2013-ban felújították, az összes külső nyílászárót (ablakok és a terasz ajtó: 3 rétegű üvegezéssel ellátott, 6 kamrás műanyag, a bejárati ajtó: hőszigetelt, díszüveg betétes műanyag) kicserélték, és új redőnyökkel és szúnyoghálókkal szereltették fel.

2022-ben az épület 15 cm-es hőszigetelést és színezést kapott és új esővízcsatornák is felszerelésre kerültek. A padlástérben 30 cm vastag üveggyapot szigetelést tettek.
A tetőtéri fürdőszobát kibővítették és teljesen felújították. Az udvar felőli teraszt télikertté alakították, kiváló minőségű alumínium nyílászárók beépítésével és új padlóburkolat lerakásával.

Az étkezős konyha beépített tölgy konyhabútorral, gépesítve az ár részét képezi.

A szobákban tölgyfa parketta, a többi helyiségben kerámia burkolat van. A ház központi fűtéses, a meleg víz szolgáltatásról villanybojler gondoskodik. A gázkazán mellett új vegyes tüzelésű kazán, valamint a nappaliban egy 8kW teljesítményű, gránitburkolatos kandallókályha biztosítja a meleget, amely alkalmas az egész földszint befűtésére is.

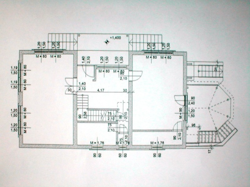
Helyiségek:
földszint:
- előtér 14 m2,
- nappali 31 m2,
- konyha-étkező 25 m2,
- kamra,
- fürdőszoba 180 cm-es káddal
- külön wc,
- télikert (12m2)
- fedett terasz (10 m2)

tetőtér:
- társalgó 20m2, (Ebből nyílnak a szobák és a fürdő)
- 2 szoba 20m2 illetve 14 m2,
- 2 félszoba 12m2 és 10,5 m2,
- a hálószobából nyíló gardrób,
- zuhanyzós fürdőszoba wc-vel;

szuterén:
- hobbiszoba kb. 20m2,
- mosókonyha,
- 1 férőhelyes garázs,
- tároló, kazánház (gázkazán, vegyes tüzelésű kazán)
- a hátsó terasz alatti tároló

Viakolor burkolatú lejárón, és motoros, hőszigetelt garázskapun keresztül lehet bejutni a szuterénbe. De van a kert felől is bejárata.

Az épület nagyon jó állapotban van, a konyha kivételével minden helyiség fel lett újítva.

A kertben egy hatalmas diófa nyújt kellemes árnyékot, sárgabarack, őszibarack, meggy és szilvafa valamint egy 6m2-es épített magas-ágyás található. Az udvarban valamint az utcán, a ház előtt is van parkolási lehetőség. Az utca aszfaltozott, több kis bolt is található a ház közvetlen közelében.

Akár érdi vagy tárnoki ház, ikerház, sorházi lakás is beszámítható!

AZ INGATLAN TEHERMENTES!

FINANSZÍROZÁS:
Nálunk mindent egy helyen intézhet:
- hivatalos ingatlanközvetítés;
- szakszerű jogi képviselet;
- profi hitelügyintézés: 3% Otthon Start, CSOK-hitel, több mint 100 konstrukció;

VÁROM MEGTISZTELŐ HÍVÁSÁT!
Országh Eszter

Országh Eszter

Hívjon bizalommal

+36-30-648-Mutasd!

További hirdetéseim

Ingatlaniroda
GDN Ingatlanhálózat - HázPont
+36 30 785 2223

Küldjön üzenetet

Visszahívást kérek

Hasonló ingatlanok