Eladó Családi ház Sárkeresztúr - Napfényes vidéki otthon

60 m2Alapterület 2 Szoba
16 500 000 Ft Ár
393567Azonosító
További adatok

942 m2 Telek

Udvari Kilátás

Felújított Állapot

Vegyes falazat Szerkezet

Elektromos Fűtés

Dupla komfort Komfort

Saját beálló Parkolás

Kiváló Tömegközlekedés

Nem Amerikai konyhás

Van Kertkapcsolat

1960 Építés éve

Délkeleti Tájolás

Hitelkalkuláció – a részletekért kattintson valamelyik bank logójára!

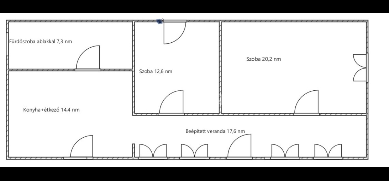
Szépen felújított családi ház eladó Sárkeresztúr központjában, nagy telekkel

Eladó Sárkeresztúr faluközpontjában egy felújított, vegyes falazatú családi ház 942 nm-es telken.

A házba egy világos, beépített verandán keresztül lépünk be, ahonnan két tágas hálószoba nyílik. A veranda végében található a konyha-étkező, amelyből egy fürdőkádas fürdőszoba érhető el.

Az ingatlan felújítása során:
- műanyag nyílászárók kerültek beépítésre
- új villany- és vízvezetékek
- új hidegburkolatok készültek
- a konyhai kiállások kialakításra kerültek

A szobákban a melegburkolat színe még választható, melynek költségét az eladási ár tartalmazza. Az ingatlan kívül-belül frissen festett, így az új tulajdonos szinte azonnal költözhet.

A fűtés elektromos, a gáz az udvaron belül elérhető, így igény esetén a későbbi kiépítés is megoldható.
Az ingatlantól 500 méteren belül elérhető orvosi rendelő, védőnői szolgálat, iskola, óvoda, bolt, buszmegálló.
A település közlekedése kiváló: rendszeres buszjáratok biztosítják az eljutást a környező városokba. A falu a Székesfehérvár – Szekszárd útvonalon fekszik, így a közelben található Székesfehérvár, Fejér vármegye székhelye, amely számos munkalehetőséget kínál.

A faluban élénk közösségi élet zajlik, az év során számos rendezvény várja a lakókat. Nagy hagyománya van a lovaskultúrának, így minden évben országos fogathajtó versenyt is rendeznek. Sárkeresztúr tagja a Keresztúr falvak közössége szervezetnek is, amelynek keretében rendszeresen szerveznek közös programokat és kirándulásokat.

Amennyiben hitelfelvétel is érdekelné, bankfüggetlen hitelközpontunk térítés mentes nyújt segítséget ügyfeleink részére!
Országh Eszter

Országh Eszter

Hívjon bizalommal

+36-30-648-Mutasd!

További hirdetéseim

Ingatlaniroda
GDN Ingatlanhálózat - HázPont
+36 30 785 2223

Küldjön üzenetet

Visszahívást kérek

Hasonló ingatlanok