Eladó Lakás (panel) Százhalombatta - Első emeleti lakás, új konyhabútor!

47 m2Alapterület 1 + 1 Szoba
53 500 000 Ft Ár
394596Azonosító
További adatok

Utcai Kilátás

Jó állapotú Állapot

Beton Szerkezet

Távfűtés Fűtés

Összkomfort Komfort

Utcán, közterületen Parkolás

Emelet 1

Nincs Lift

Kiváló Tömegközlekedés

Nem Amerikai konyhás

Nincs Kertkapcsolat

1985 Építés éve

Hitelkalkuláció – a részletekért kattintson valamelyik bank logójára!

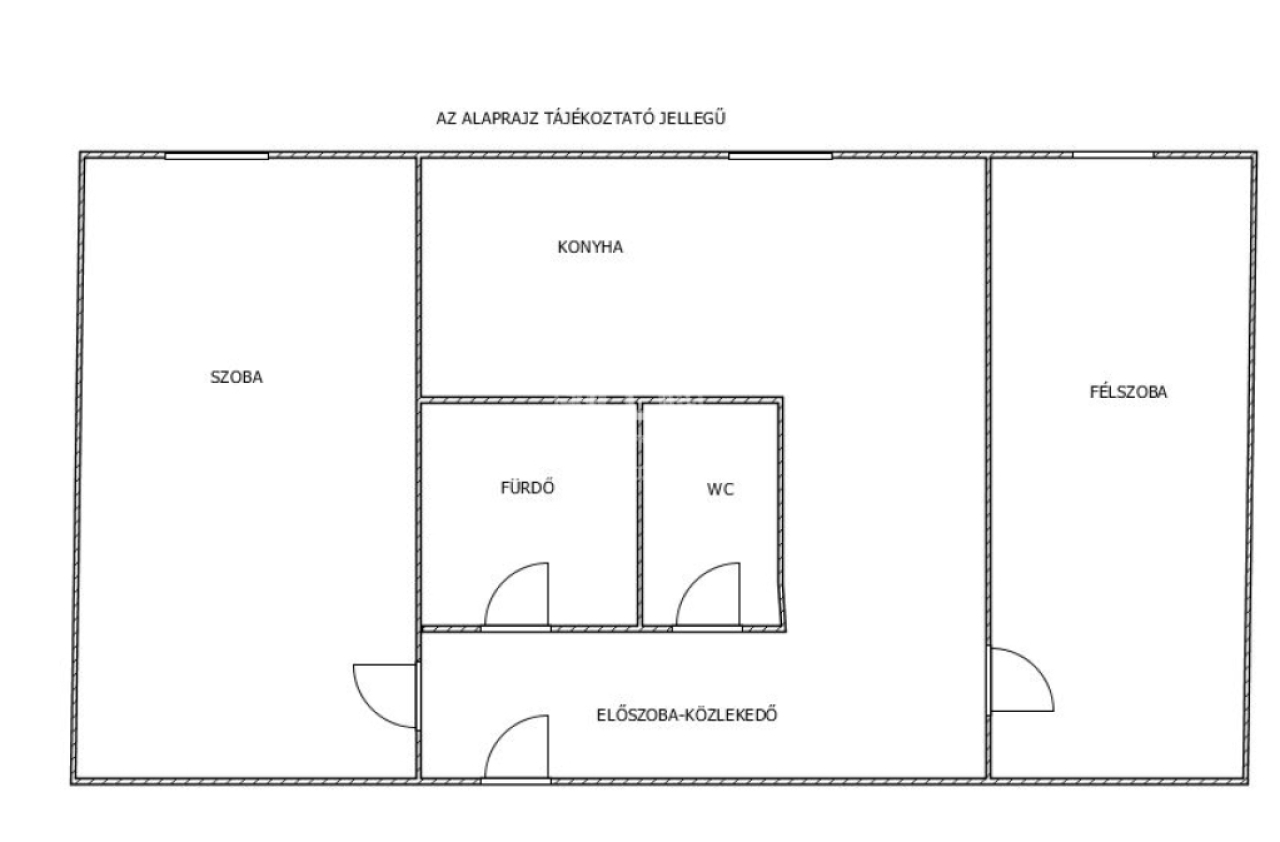
Százhalombattán a Déli lakótelepen kínálunk megvételre egy első emeleti, 47 nm nagyságú, jó állapotú, napfényes, 1+1/2 szobás, középső lakást.

Helyiségei:
- közlekedő
- fürdőszoba
- wc
- konyha, új konyhabútorral
- klímás nappali szoba
- félszoba

Fűtése távfűtés, rezsije alacsony.

A társasház külső szigetelése és az ablakok cseréje megtörtént.

Az ingatlan rövid időn belül birtokba vehető, befektetésnek is kiváló lehetőség.

Irodánk teljes körű banki hitellehetőségekkel, pénzügyi konstrukciókkal, állami támogatásokkal díjmentesen áll az érdeklődők rendelkezésére.

Amennyiben további tájékoztatásra van szüksége, vagy szeretné megtekinteni az ingatlant kérem, hívjon a hét bármely napján.

A hirdetésben szereplő adatok tájékoztató jellegűek, nem minősülnek ajánlattételnek.
Országh Eszter

Országh Eszter

Hívjon bizalommal

+36-30-648-Mutasd!

További hirdetéseim

Ingatlaniroda
GDN Ingatlanhálózat - HázPont
+36 30 785 2223

Küldjön üzenetet

Visszahívást kérek

Hasonló ingatlanok