Eladó Családi ház Szigetbecse - Balassi Tó közelében

100 m2Alapterület 4 Szoba
79 900 000 Ft Ár
392645Azonosító
További adatok

460 m2 Telek

Kertre néző Kilátás

Új Állapot

Tégla Szerkezet

14 m2 Erkély/terasz

Hőszivattyú Fűtés

Dupla komfort Komfort

Saját beálló Parkolás

Tömegközlekedés

Amerikai konyhás

Van Kertkapcsolat

2024 Építés éve

Délnyugati Tájolás

Hitelkalkuláció – a részletekért kattintson valamelyik bank logójára!

ÚJ ÉPÍTÉSŰ A+ ENERGETIKAI BESOROLÁSÚ, AMERIKAI KONYHA NAPPALI+ NÉGY SZOBÁS ÖNÁLLÓ CSALÁDI HÁZ ELADÓ SZIGETBECSÉN!

Szigetbecsén új építésű ingatlanok szomszédságában, kínálunk megvételre 10% önerővel leköthető, falusi CSOK-ra CSOK+-ra alkalmas családi házat, közvetlen beruházótól!

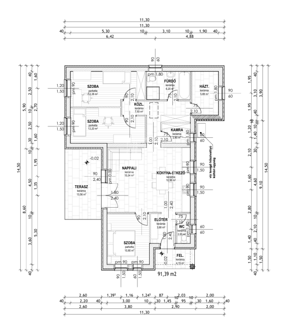
A bruttó 120 m2, 100 m2 hasznos lakóterű otthon, 480 m2 körülkerített telken épül meg, 2026 nyár végi átadással
.
Helyiségei:amerikai konyha nappali 27,52 m2 teraszkapcsolattal,
3 szoba egyenként 10,80 m2,12,20 m2, 12,80 m2, fürdőszoba 5,20 m2, háztartási helyiség 4,37 m2, közlekedő 7,03 m2
előtér 3,68 m2, wc 2,00 m2, előtér 3,68 m2, terasz 13,56 m2.

Az ingatlan rendkívül gazdag műszaki tartalommal épül meg!
-Leier 30 NF falazat
-12 cm homlokzati szigetelés
-fújt, PUR habos tetőszigetelés
-burkolólapok és laminált parketta 6000 Ft/nm és 5000 Ft/nm áron választhatók
-3 rétegű műanyag nyílászárók redőnnyel, szúnyoghálóval, teraszon alumínium motoros redőnnyel felszereltek
-8 kw hűtő/fűtő hőszivattyú 230 V padlófűtéssel, hűtéssel
-riasztó vezetékelve
-a szükségestől több elektromos kiállás (80 db)
-térkövezett járda
-térkövezett autóbeálló
-fürdőkád 70.000 ft-ig választható,
-csaptelepek 30.000 ft/db-ig választhatók.
-mosdók 30.000 ft/db-ig választhatók.
-törölköző szárító 30.000 ft-ig választható.
-Wc kagylók: 30.000 ft/db-ig választhatók.
-Wc nyomólapok: 12.000 ft/db-ig választható az árban.
a teljes műszaki tartalom a szerződés részét képezi.
-Áramellátás 3x16 A, H-tarifa 1x25 A

Amennyiben fontos Önnek, a természet közelsége a nyugodt környezet ne keressen tovább, megtalálta álmai OTTHONÁT!
Az ingatlan kiváló minőségű anyagokból, profi kivitelezéssel épül!
Amennyiben további kérdése van keressen bizalommal!

FINANSZÍROZÁS:
Nálunk mindent egy helyen intézhet:
- hivatalos ingatlanközvetítés;
- szakszerű jogi képviselet;
- profi CSOK-PLUSZ, és hitelügyintézés: 16 Bank, több mint 100 konstrukció;

A részletes adatvédelmi tájékoztató folyamatosan elérhető a GDN weboldalán.
Országh Eszter

Országh Eszter

Hívjon bizalommal

+36-30-648-Mutasd!

További hirdetéseim

Ingatlaniroda
GDN Ingatlanhálózat - HázPont
+36 30 785 2223

Küldjön üzenetet

Visszahívást kérek

Hasonló ingatlanok