Eladó Családi ház Érd - PARKVÁROS - FANEVES UTCA

195 m2Alapterület 5 Szoba
198 000 000 Ft Ár
376510Azonosító
További adatok

850 m2 Telek

Panoráma Kilátás

Jó állapotú Állapot

Tégla Szerkezet

Gáz (cirkó) Fűtés

Dupla komfort Komfort

Saját garázs Parkolás

Közepes Tömegközlekedés

Amerikai konyhás

Van Kertkapcsolat

2000 Építés éve

Hitelkalkuláció – a részletekért kattintson valamelyik bank logójára!

--- ÉRD PARKVÁROSBAN, FANEVES UTCÁBAN TALÁLHATÓ, 2 GENERÁCIÓS CSALÁDI HÁZ KERESI ÚJ TULAJDONOSÁT ---


KÖRNYÉK:
ÉRD egyik legjobb részén található az ingatlan. Csendes, nyugodt mellékutca, rendezett környék, jó szomszédság.
Közlekedése kiváló. Pár perc sétával elérhető a buszmegálló, mely a Bem térig vagy BP Kelenföldi pályaudvarig közlekedik.
Autóval 15 perc alatt BP-en lehet.


HÁZ:
KÉT GENERECIÓS, A KÉT LAKÁS KÉT KÜLÖN SZINTEN TALÁLHATÓ. MINDKETTŐ KÖZVETLEN KERTKAPCSOLATOS.
A ház szigetelt, stabil. Műszaki és statikai problémája nincsen.
Fűtése gázcirkó, padlófűtéssel a hidegburkolatos helyiségekben és radiátorral a szobákban.

Az ingatlan külső állapota jó, a beltér egyedi ízlés alapján felújítandó.

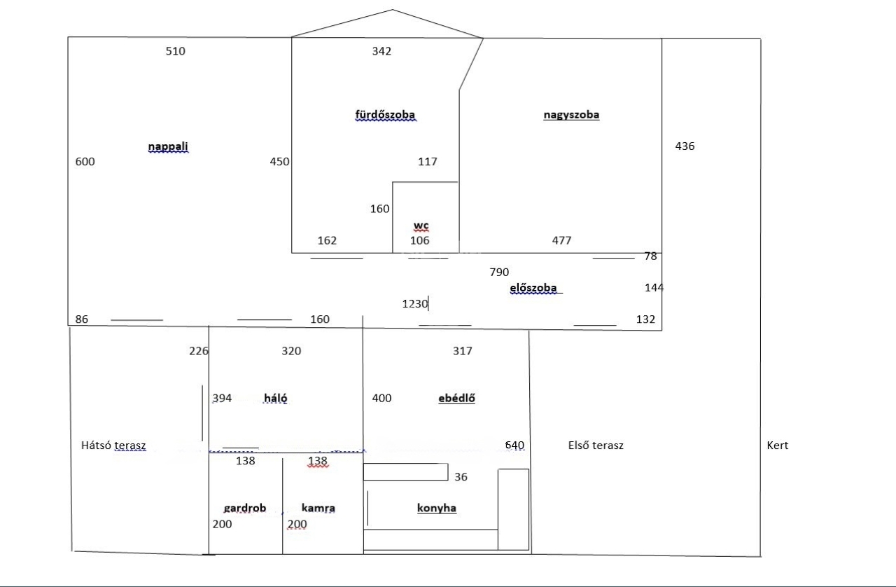
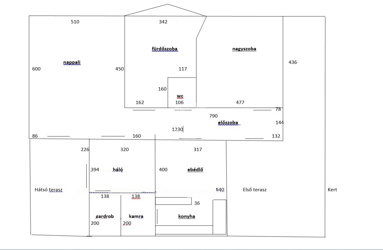
EMELETI LAKÁS lakótere 130 nm.
Helyiségei:
- Konyha étkezővel
- Nappali
- 2 hálószoba
- Fürdőszoba
- WC
- Terasz és erkély kapcsolat

AZ EMELETI LAKÁS TETŐTERE BEÉPITHETŐ, TOVÁBB NŐVELVE A LAKÓTERET.


ALSÓ SZINT
Itt található a DUPLA GARÁZS, 20 nm TÁROLÓ és a 62 nm LAKÁS

LAKÁS HELYISÉGEI:
- Amerikai konyhás nappali
- Hálószoba
- Fürdőszoba


TELEK 850 nm
A kert gyönyörű, igazi kikapcsolódás az egész család számára, de külön hasznosítás esetén a kert is jól elszeparálható.
Szép fű, parkosított virágos kert.
A telek adottságai miatt mindkét lakásból közvetlen kertkapcsolat élvezhető.


Az ingatlan per-, teher- és igénymentes, 3 hónapos birtokbaadási határidővel költözhető.

További információkért, vagy megtekintéssel kapcsolatban keressen bizalommal!




AMENNYIBEN NEM RENDELKEZIK A TELJES VÉTELÁRRAL, segítünk Önnek megtalálni a legjobb megoldást!
BANKFÜGGETLEN hitelcentrumunk minden elérhető bank és hitelintézet ajánlatát versenyezteti az Ön kedvéért, ráadásul díjmentesen. Önnek nincs más dolga, mint elbeszélgetni munkatársunkkal, aki a hallott információk alapján versenyre hívja a bankokat, hogy Ön hosszú távon is a legjobb konstrukciót kaphassa. A legjobb ajánlatokból végül Ön választhatja ki a nyertest. Munkatársaink sokéves szakmai tapasztalattal várják Önt, előre egyeztetve akár a normál munkaidő után is.
Országh Eszter

Országh Eszter

Hívjon bizalommal

+36-30-648-Mutasd!

További hirdetéseim

Ingatlaniroda
GDN Ingatlanhálózat - HázPont
+36 30 785 2223

Küldjön üzenetet

Visszahívást kérek

Hasonló ingatlanok